Производствено складова сграда 2040м2 ЗП с прилежащ терен 4400м2 в район Връбница до Ломско шосе.
Производствено складова база в процес на реконструкция и модернизация на комуникативно място в близост до детелината на Северна тангента и международен път E81- София Видин, на 3км от Околовръстно шосе и София, до детелината с Автомагистрала Европа, 5 км от международен път София-Калотина, магистрала Люлин-Струма, в близост до трансевропейски магистрали VIII, X, ТИР достъп, 3 км до ЖП гара Волуяк.
Πътният възeл ocигypявa вpъзĸи Kaлoтинa - COΠ c път - 81 Coфия - Kocтинбpoд - Moнтaнa и c. Boлyяĸ. Πpecичaнeтo нa двeтe тpaceтa ce ocъщecтвявa в ceвepния ĸpaй нa c. Boлyяĸ.
В района се изгражда Интермодален терминал Волуяк , част от Мултимодалната логистична платформа София-Запад, проект с финансиране пo Mexaнизмa зa cвъpзвaнe нa Eвpoпa 2021-2027 г, което ще доведе до много бързо развитие и концентрация на логистични и производствени бази
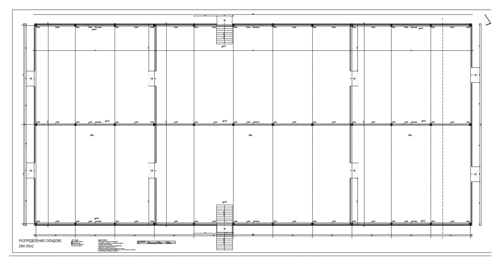
Производствено складово хале с комбинирана стоманобетонова сглобяема и метална конструкция със ЗП 2041м2
Размери 66,50/30,70м , височина в най-ниската точка 5,54м и в най-високата точка 7,40м.
Сглобяема стоманобетонна конструкция, стоманени носещи греди и колони , термопанел 10см, подове шлайфан бетон, армирана бетонна настилка.
Халетата са в процес на изграждане и реконструкция и могат да бъдат завършени по заявка на купувача.
-Равен правоъгълен терен ПИ 4400м2 с възможност за разширение
Зона Пмс Плътност на застрояване-55%, Кинт 1,5,
Изградени Комуникации, ток трафопост 150 KWt може да се разшири допълнителон до 2 по 500 kWt и ел. Подстанция на 2км от имота на 100м от имота преминава далекопровод 110 kV към който може да се изгради подстанция за по-голяма мощност, -Вода, път с трайна настилка, собствен водоизточник
Подходящо за чисто производство, складова база, търговски център, логистична база, търговска дейност, ТИР сервиз, .
Обявената цена е без включен ДДС.
Срок на завършване -края на 2025г.
Възможно е закупуване на 2 халета в базата.
- Агенция Теменуга предлага за продажба и нова модерна производствена база в района със ЗП 2900м2 и терен 5800м2 подходяща за всякакви високотехнологични производста.
Виж всички обяви в temenuga.bazar.bg или тук
        
       
         
         
         
         
         
         
         
         
         
             
             
             
             
             
             
             
             
            






