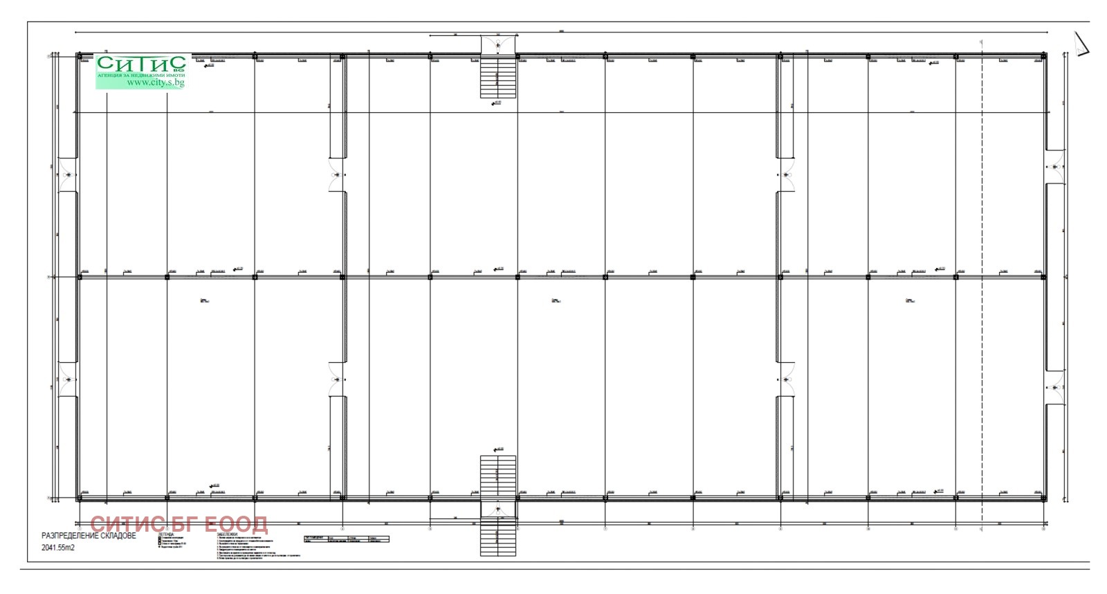
Агенция СИТИС предлага на вниманието Ви нова производствено складова база 2041.55кв.м. с прилежащ терен от 4400кв.м. с директен достъп от Ломско шосе.
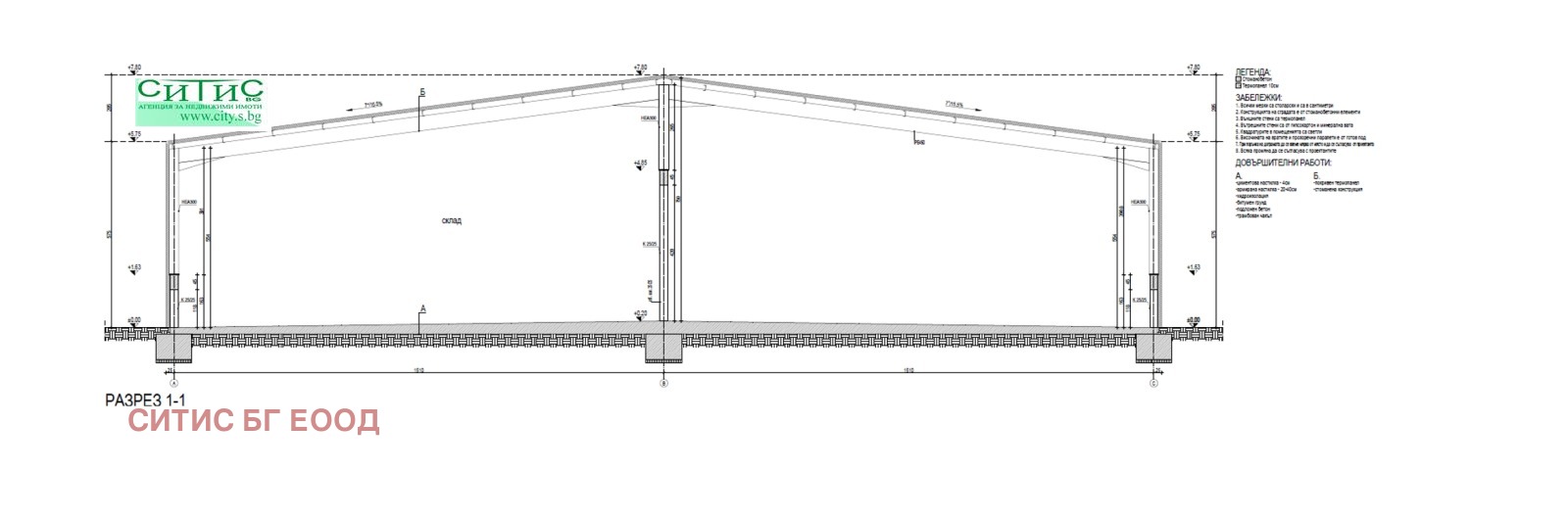
Хале изградено от сглобяема стоманобетонна конструкция с 10см. термопанели, настилка шлайфан бетон, естествено осветление.
Размери: 66.50м / 30.70м
Височина: 5.50м. в страничните стени и 7.40м. кота било.
Изградени комуникации тир достъп, асфалтов път, ток, собствен водоизточник.
Удобен достъп до основни пътни артерии Околовръстен път, Северна скоростна тангента, международен път E81 и автомагистрала Струма, на 3км. ЖП гара.
Халето е в процес на изграждане и може да бъде завършено според изискванията на купувача. Имота е подходящ за складова база, чисто производство, логистична база.







