Агенция СИТИС предлага на вниманието Ви терен от 8800кв.м. с изградени в него две халета всяко по 2041.55кв.м. с директен достъп от Ломско шосе.
Сглобяема стоманобетонна конструкция с 10см. термопанели, настилка шлайфан бетон и естествено осветление.
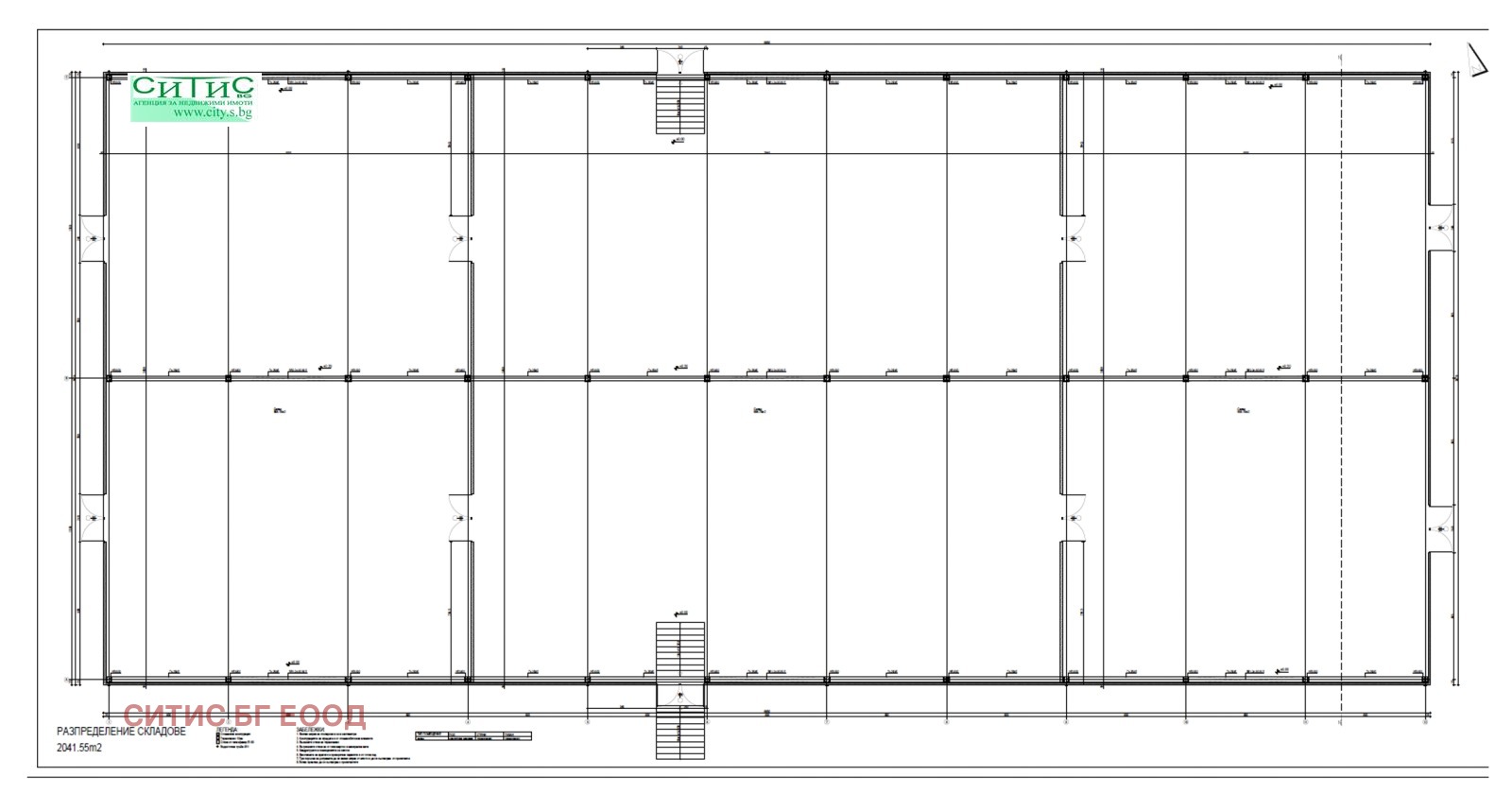
Размери: 66.50м / 30.70м
Височина: 5.50м. в страничните стени и 7.40м. кота било.
Изградени комуникации тир достъп, асфалтов път, ток, собствен водоизточник.
Удобен достъп до основни пътни артерии Околовръстен път, Северна скоростна тангента, международен път E81 и автомагистрала Струма, на 3км. ЖП гара
Халетата са в процес на изграждане и може да бъдат завършени според изискванията на купувача. Изключително удобна складова база, възможност за чисто производство или логистична база.







