Translations in other languages:
All real estate ads published on imot.bg have been translated into English and published on the partner site
Получихте нова обява по филтър





Промяна на цена на наблюдавана обява


стара цена
нова цена
imot.bg – обяви за продажби и наеми на имоти
Сайт за имоти №1
Translations in other languages:
All real estate ads published on imot.bg have been translated into English and published on the partner site
ДОБАВИ ОБЯВА Редакция на обява
Начало Публикуване Търсене Нови сгради Агенции Новини Кредити + Още... Моят имот
Продава СКЛАД
град София, с. Волуяк
2 449 860 €
4 791 509.68 лв.

(1 200 €, 2 347.00 лв./m2)
Цената е без ДДС
История на цената
Коригирана в 11:32 на 1 септември, 2025 год.
Обявата е посетена 23 пъти.
Площ:
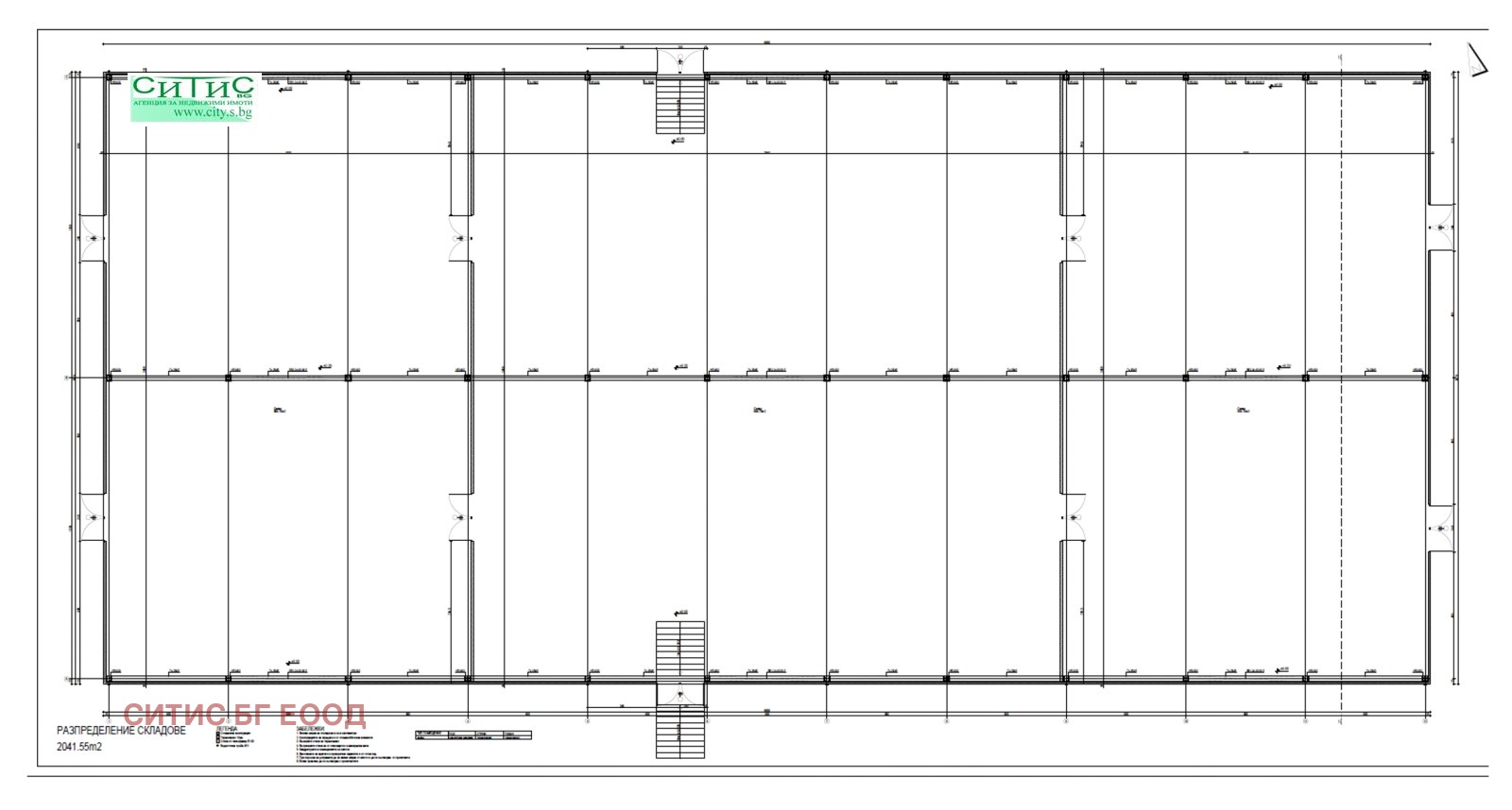
2042 m2
Строителство:
Сглобяема конструкция, Ще бъде въведен в експлоатация 2025 г.

Описание на имота:


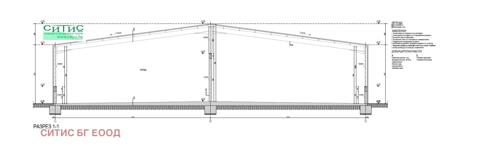
Агенция СИТИС предлага на вниманието Ви нова производствено складова база 2041.55кв.м. с прилежащ терен от 4400кв.м. с директен достъп от Ломско шосе.

Хале изградено от сглобяема стоманобетонна конструкция с 10см. термопанели, настилка шлайфан бетон, естествено осветление.

Размери: 66.50м / 30.70м
Височина: 5.50м. в страничните стени и 7.40м. кота било.

Изградени комуникации тир достъп, асфалтов път, ток, собствен водоизточник.

Удобен достъп до основни пътни артерии Околовръстен път, Северна скоростна тангента, международен път E81 и автомагистрала Струма, на 3км. ЖП гара.

Халето е в процес на изграждане и може да бъде завършено според изискванията на купувача. Имота е подходящ за складова база, чисто производство, логистична база.

Виж всички обяви в citys.bazar.bg или тук
Особености
Сглобяема конструкция
За контакт:
0888219215
Брокер:
Зорница Анастасова
0888 219 215
Офис: София, ул. Княз Борис I 97
Още оферти от брокера: Продава | Дава под наем | Купува | Наема
Агенция:
СИТИС БГ ЕООД
029807676
СИТИС БГ ЕООД logo
Медал за прослужено време
В imot.bg от 2002 г.
citys.imot.bg
Адрес:
област София, гр. София, ул.'Княз Борис I' 97 , www.city.s.bg, [email protected]
http://www.city.s.bg
ИЗПРАТИ ЗАПИТВАНЕ
ИЗПРАТИ ЗАПИТВАНЕТО

Продава СКЛАД
град София, с. Волуяк
Обява: 1n174790508555417

2 449 860 €
4 791 509.68 лв.
История на цената
(1 200 €, 2 347.00 лв./m2)

Цената е без ДДС
ЗАПАЗИ ОБЯВАТА

Местоположение: град София, с. Волуяк

Виж още имоти от София или още Складове в София
Допълнителни данни за имотите в района и сравнение с други райони: Търсене в АРХИВ 2013 - 2025 г.











Добави/редактирай
вид имот и район
*Средните цени са определени чрез медиана стойност.
Още обяви в imot.bg
КОНТАКТИ | SMS КОДОВЕ | СТАТИСТИКА | ПОМОЩ | ОБЩИ УСЛОВИЯ | РЕКЛАМА | ТОП ОФЕРТА | Въпроси и предложения към imot.bg
Резон Медия | Имоти | Автомобили | Работа | Новини | Обяви | Преводи и легализация 2002-2025 ® Copyright imot.bg
© imot.bg ползва и препоръчва хостинг услугите на Bulinfo.net
Следвайте ни в: