Сити Пропъртис предлага на Вашето внимание новопостроена двуетажна къща с АКТ 16, разположена в най-новата и предпочитана зона за живеене в с. Изгрев.
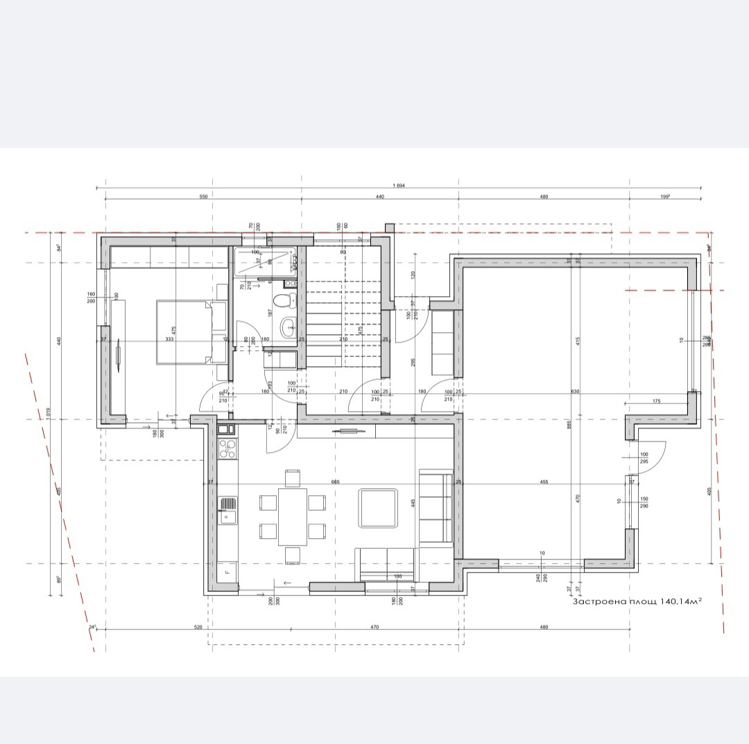
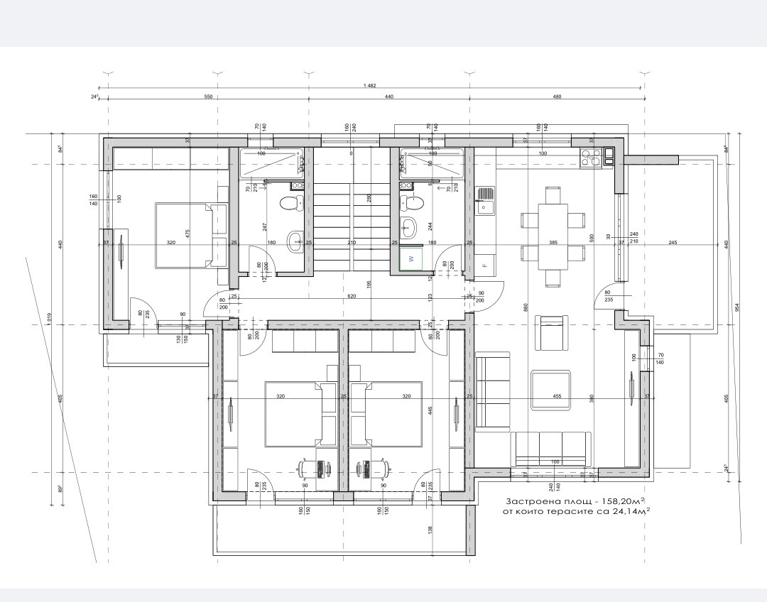
Имота е с площ от РЗП 298.34 кв.м. в парцел 463 кв.м.. Основните обитаеми помещения са с изложение Изток/Юг/Запад. Къщата е на два етажа, като първият е със застроена площ от 140.14 кв.м и включва: двоен гараж, дневна с кухненска част и излаз към обширна веранда от две страни, спалня, санитарен възел и склад. Вторият етаж е със застроена площ от 158.20 кв.м и включва: просторна всекидневна с кухня, три спални, две бани със санитарен възел, разпределителен коридор и три тераси . Предвидената степен на завършеност включва гипсокартон на стените и таваните, отоплителна инсталация и замазка на пода, изградени ВиК и ел. инсталации по проект. Строителят предлага възможност за изграждане на инсталациите съобразно индивидуалните изисквания на бъдещия собственик. Сградата ще бъде свързана с канализационната и водопроводната мрежа на населеното място, както и в електропреносната мрежа. Откритите индивидуални партиди към експлоатационните дружества са включени в крайната цена. Обява с реф. 42488







