Агенция за недвижими имоти ХОУМ ФОР Ю има голямото удоволствие да ви представи за продажба новопостроена луксозна двуетажна еднофамилна къща в с. Изгрев общ. Благоевград.
Площ на имота: 463.00 кв.м.
ЗП - /Застроена площ/: 126.60 кв.м.
РЗП - /Разгъната застроена площ/: 273.60 кв.м.
Двор: 336.40 кв.м.
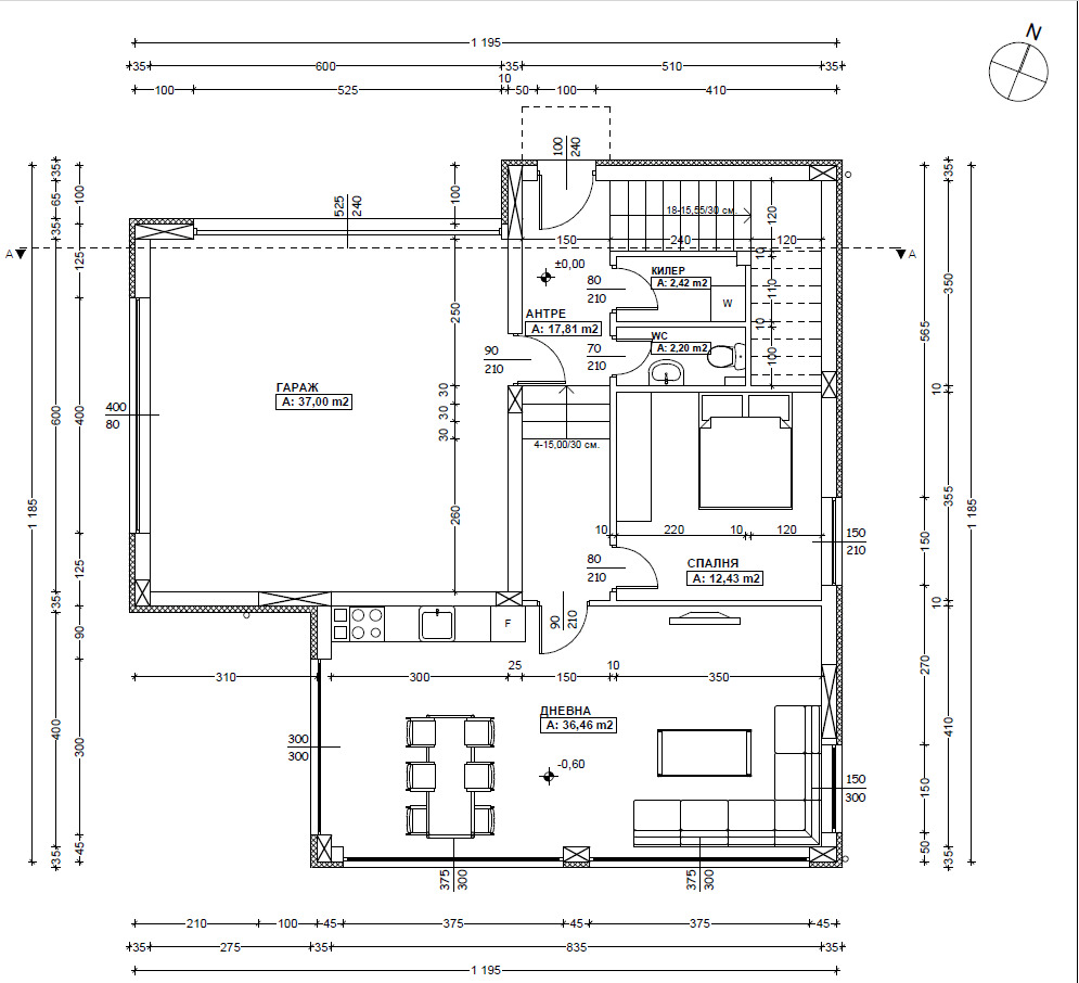
Разпределение на КОТА =/- 0,00 М със ЗП 126.60 кв.м.:
- входно антре с площ 17.81 кв.м.
- просторна дневна с трапезария и кухненски бокс с площ 36.46 кв.м. с достъп до открита веранда и двора
- спалня с площ 12.43 кв.м.
- тоалетна с площ 2.20 кв.м.
- килер с площ 2.42 кв.м.
- двоен гараж с площ 37.00 кв.м. с топла връзка към къщата
- вътрешно стълбище към втория етаж.
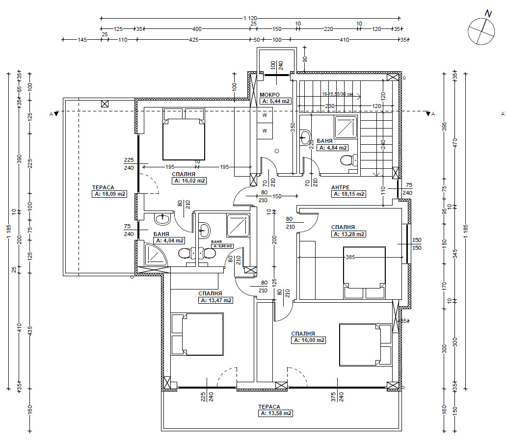
Разпределение на КОТА + 2,80 М втори етаж със ЗП 147.00 кв.м.:
- антре с площ 18.15 кв.м.
- баня с тоалетна с площ 4.84 кв.м.
- мокро помещение с площ 5.44 кв.м.
- спалня 1 с площ 16.02 кв.м.
- баня с тоалетна с площ 4.04 кв.м.
- тераса с площ 18.09
- спалня 2 с площ 13.28 кв.м.
- спалня 3 с площ 16.00 кв.м.
- тераса с площ 13.58 кв.м.
- спалня 4 с площ 13.47 кв.м.
- баня с тоалетна с площ 3.90 кв.м.
Къщата ще бъде завършена и предадена в следния вид:
- висококачествени тухли Wienerberger Porotherm 25 N+F Light
- алуминиева цветна дограма 6 камерна цветна дограма с троен стъклопакет К стъкло 4 сезона
- ВиК до тапа
- ЕЛ. до точка
- топлоизолационна система BAUMIT PRO
- стени и тавани: фина гипсова мазилка на KNAUF
- под: циментова замазка
- монтирана блиндирана входна врата
ПОКРИВ:
- СТОМАНО БЕТОННА ПЛОЧА - 20 см.
- ХИДРОИЗОЛАЦИЯ С МИНЕРАЛНА ПОСИПКА
- ХИДРОИЗОЛАЦИЯ
- БИТУМЕН ГРУНД
- ЦИМЕНТОВА ЗАМАЗКА - 2 % НАКЛОН - /4 см./
- ТОПЛОИЗОЛАЦИЯ XPS - 10 см.
- ПАРОИЗОЛАЦИЯ
- МАШИННА МАЗИЛКА - 1 см.
- ЛАТЕКС
Къщата ще бъде свързана във канализационната, водопроводна мрежа и присъединени към електрическата мрежа /партидите за ток и вода са включени в цената/.
Доказан инвеститор е с 30г. история в строителния бранш, известен с коректно отношение, поддържане на високи стандарти на качество и с множество реализирани проекти!
До имотът се стига посредством черен път, който е настлан с трошена фракция.
ЕТАП НА СТРОИТЕЛСТВОТО: АКТ 14!!!
АКТ 14 (това е документът за приемане на конструкцията на къщата, който се издава, когато къщата достигне етап груб строеж)
АКТ 15 (това е документът, с който се констатира, че къщата е напълно завършена)
АКТ 16 - до края на 2025г. (това е документа, с който къщата се въвежда в експлоатация или по просто казано годна за живеене )
Къщата очаква своите нови собственици, които ще я стопанисват и превърнат в техен дом!
За да получите повече информация за предлаганата от нас оферта може да ни се обадете на посочените телефони за връзка!
Екипът от професионалисти на ХОУМ ФОР Ю ще Ви помогне да сбъднете мечтите си и да ги превърне в реалност, като ви съдейства НАПЪЛНО БЕЗПЛАТНО при кандидатстването за жилищен кредит с ПРЕФЕРЕНЦИАЛНИ УСЛОВИЯ от най-големия кредитен консултант в България КРЕДИТ ЦЕНТЪР!
Ако предлаганата къща ви е харесала и представлява интерес за вас, не се колебайте да се свържете с наш брокер, за да резервирате час за оглед в удобно за вас време!
Заповядайте в нашият офис на бул. Кирил и Методий 29 Б за безплатна консултация с нашите професионалисти, които ще ви обърнат специално внимание, като ви запознаят с пазара на недвижими имоти и ви помогнат с избора на ново жилище според вашите изисквания!
Новият Ви ДОМ е точно тук!
Защото с нас мечтите стават реалност!
РЕФЕРЕНТЕН 7028







