Предлаганата къща е изградена в парцел с площ от 698 кв.м, с РЗП от 260 кв.м, разпределени както следва:
Партер състоящ се от входно антре, баня със санитарен възел, механа, гараж, мазе.
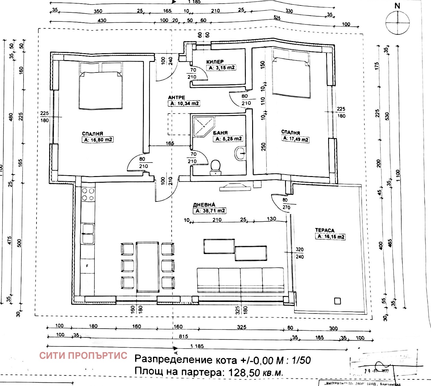
Първи етаж състоящ се от входно антре, просторна всекидневна с излаз съм панорамна веранда и двор, две спални, баня със санитарен възел и килер( втори санитарен възел).
Подпокривно пространство, което може да бъде обособено според нуждите и потребностите на бъдещия собственик.
Къщите ще бъдат изградени с висококачествени материали и ще бъдат предадени на новите собственици в следния вид: - 7- камерна цветна дограма с трислоен стъклопакет, ВиК и Ел. инсталации до точка и до тапа,елегантна и стилна фасада с положена 10 см. топлоизолация, под - замазка, монтирана входна врата.
висок клас строителни материали от доказани производители.
Срок за въвеждане в експлоатация 2025 г.
Направете своя избор на нов семеен дом в затворен комплекс без такса поддръжка в полите на Влахина планина, състоящ се от пет луксозни еднофамилни къщи със забележителна гледка към планината . Комплексът е с видеонаблюдение и контролиран достъп, осъществяващ се чрез метална врата с дистанционно управление, като целият комплекс е защитен с ограда от метални пана. Изградена е вътрешна улична мрежа със споделено пешеходно и автомобилно движение.
Насладете се на тишина и зеленина в полите на планината и същевременно в близост до града.
За повече информация и оглед свържете се с нас и цитирайте референтния номер на имота.
Обява с реф. 42351
Виж всички обяви в cityproperties.bazar.bg или тук
        
       
         
         
         
         
         
         
         
         
             
             
             
             
             
             
             
            






