Апартаментът е част от новострояща се сграда в близост до пазар Красно село, метростанция Красно село, основни пътни артерии като бул. Цар Борис III , бул. България , бул. Гоце Делчев , бул. Житница и др.
Проектът е с РЗП 4710 кв.м и се състои от сутерен, партер, с разположени на него търговски обекти и 7 жилищни етажа, с добре позиционирани и функционално разпределени двустайни, тристайни и четиристайни апартаменти, както и един с характерисиките на мезонет. В сградата е предвидено да бъдат изградени 22 подземни, 9 надземни паркоместа и 2 гаража.
Изключително високо качество при използваните строителни материали и при изпълнение на строително-монтажните дейности. Монолитна конструкция със стоменобетонни носещи елементи, плочи и тухлени зидове; външни стени 25 см, вътрешни стени 12.5 см; фасадата е със силикатна мазилка и декоративни елементи, цокъл на целия първи етаж от облицоващи фиброциментни плочи; подземен паркинг е с под от шлайфан бетон с разграфени паркоместа и автоматична гаражна врата, летящо крило; общи части с висок клас гранит или гранитогресни плочи, и парапети от метал и стъкло; асансьор за 6 човека KONE или Orona; 5-камерна дограма; инсталации, съобразени с изискванията по БДС.
Жилището се състои от:
I-во ниво
1. Aнтре 8,44 кв.м.
2. Дневна с кухненски бокс 36,74 кв.м., от която се излиза на балкон с площ от 3,02 кв.м.
3. Спалня 18,06 кв.м., с излаз от нея към балкон с площ 2,32 кв.м.
4. Втора спалня 16,91 кв.м.
5. Баня с тоалетна 3,95 кв.м.
6. Втора баня с тоалетна 2,83 кв.м.
7. Складово помещение 3 кв.м.
II ро ниво
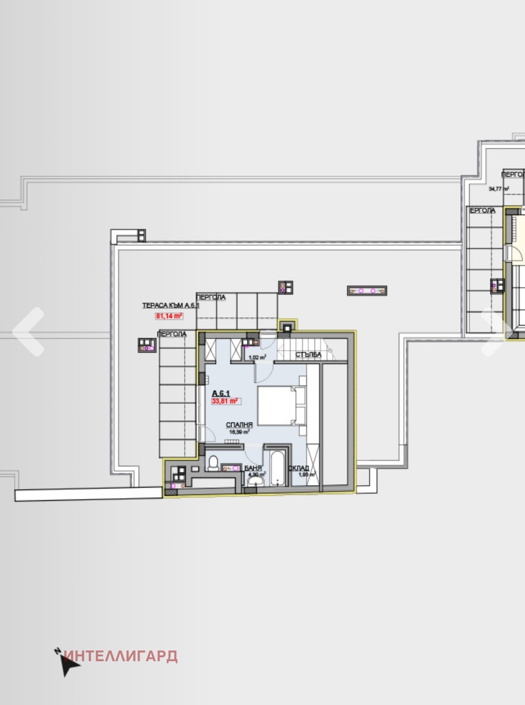
1. Трета спалня 16,30 кв.м., от която се излиза на тераса с площ 81,14 кв.м.
2. Баня с тоалетна 4,30 кв.м.
3. Складово помещение 2 кв.м.
Площта на апартамента с общите части е 180.47 кв.м., а чистата застроена площ е 162,91 кв.м.
В същата многофамилна жилищна сграда Агенцията предлага и други двустайни, тристайни и многостайни жилища.
Агенция Интеллигард си партнира със строителни фирми, които са се доказали на пазара с високо качество на строителство. Агенцията предлага своите експертни услуги юридически, инженерни и всичко необходимо в цялостния процес по избор,покупка, продажба, отдаване под наем, така че клиентите да бъдат сигурни и спокойни, че правят правилния избор в условията на техния защитен интерес. Разполагаме с възможности и да окажем необходимото съдействие на клиента, в случай, че има нужда от банково финансиране.
Гъвкави схеми на плащане според възможностите и желание на клиента! Агенцията предлага и други апартаменти в сградата!
За повече информация, Моля обадете се на предоставения телефон!
Изберете интелигентното решение!
Виж всички обяви в intelliguard.bazar.bg или тук







