Translations in other languages:
All real estate ads published on imot.bg have been translated into English and published on the partner site
Получихте нова обява по филтър





Промяна на цена на наблюдавана обява


стара цена
нова цена
imot.bg – обяви за продажби и наеми на имоти
Сайт за имоти №1
Начало Публикуване Търсене Нови сгради Агенции Новини Кредити + Още... Моят имот
Продава 2-СТАЕН
град София, Красно село
178 870 €
349 839.31 лв.

(2 795 €, 5 466.54 лв./m2)
Цената е с включено ДДС
Публикувана в 12:09 на 17 октомври, 2025 год.
Обявата е посетена 103 пъти.
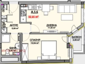
Площ:
64 m2
Етаж:
5-ти от 7
Газ:
НЕ
ТEЦ:
ДА
Строителство:
Тухла, Ще бъде въведен в експлоатация 2026 г.

Описание на имота:

ЖИЛИЩЕТО СЕ ПРЕДЛАГА БЕЗ КОМИСИОННА ОТ КУПУВАЧА! ЦЕНИ ОТ ИНВЕСТИТОР! ВЕЧЕ С АКТ 14, УДОСТОВЕРЕНИЕ ПО чл. 181 ОТ ЗУТ.
Апартаментът е част от новострояща се сграда в близост до пазар Красно село, метростанция Красно село, основни пътни артерии като бул. Цар Борис III , бул. България , бул. Гоце Делчев , бул. Житница и др.
Проектът е с РЗП 4710 кв.м и се състои от сутерен, партер, с разположени на него търговски обекти и 7 жилищни етажа, с добре позиционирани и функционално разпределени двустайни, тристайни и четиристайни апартаменти, както и един с характерисиките на мезонет. В сградата е предвидено да бъдат изградени 22 подземни, 9 надземни паркоместа и 2 гаража.
Изключително високо качество при използваните строителни материали и при изпълнение на строително-монтажните дейности. Монолитна конструкция със стоменобетонни носещи елементи, плочи и тухлени зидове; външни стени 25 см, вътрешни стени 12.5 см; фасадата е със силикатна мазилка и декоративни елементи, цокъл на целия първи ет... Виж повече
Виж всички обяви на агенцията в intelliguard.bazar.bg или тук.
Особености:
• Тухла
• Асансьор
• С гараж
• С паркинг
• Интернет връзка
• Видео наблюдение
• Контрол на достъпа
• Охрана
• Саниран
• В затворен комплекс


За контакти:  0885816803
 
Агенция: ИНТЕЛЛИГАРД

http://intelliguard.imot.bg

Още оферти: продава | дава под наем | купува | наема

Адрес: област София, гр. София, Булевард 'Цар Борис III', 128
Тел.: 0885816803
http://intelliguard-bg.com
Изпрати запитване:
 
Вашето съобщение (до 1000 символа):
Вашето име: Вашия мобилен телефон:

Вашия E-mail:  
Изпрати Е-mail
Съгласявам се с общите условия и политики за защита на личните данни

Продава 2-СТАЕН
град София, Красно село
Обява: 1b176069214266957

178 870 €
349 839.31 лв.
(2 795 €, 5 466.54 лв./m2)

Цената е с включено ДДС
 

Местоположение: град София, Красно село

Допълнителни данни за имотите в района и сравнение с други райони: Търсене в АРХИВ 2013 - 2025 г.











Добави/редактирай
вид имот и район
*Средните цени са определени чрез медиана стойност.

Още обяви в imot.bg
КОНТАКТИ | SMS КОДОВЕ | СТАТИСТИКА | ПОМОЩ | ОБЩИ УСЛОВИЯ | РЕКЛАМА | ТОП ОФЕРТА | Въпроси и предложения към imot.bg
Резон Медия | Имоти | Автомобили | Работа | Новини | Обяви | Преводи и легализация 2002-2025 ® Copyright imot.bg
© imot.bg ползва и препоръчва хостинг услугите на Bulinfo.net
Следвайте ни в: