БИЛДИНГ БОКС предлага за продажба многостаен мезонет в кв. Красно село.
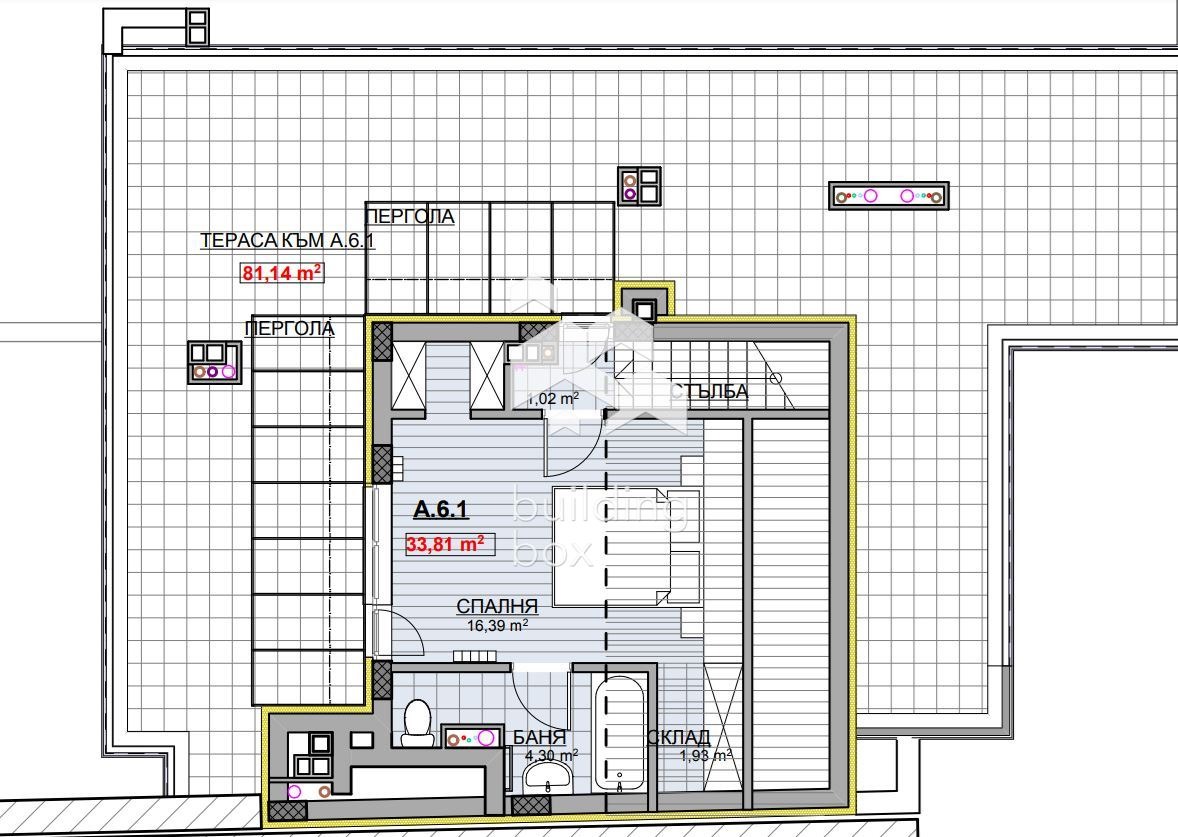
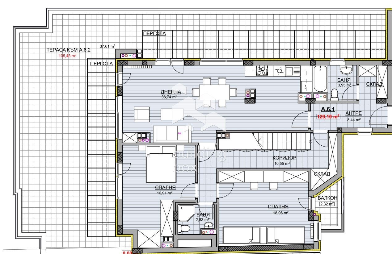
Застроената площ на имота е 162,91 кв.м и се състои от:
Първо ниво: антре, дневна с кухненски бокс, две спални, към едната от които има балкон, две бани с тоалетни, склад и тераса - 105,43 кв.м., която не е включена в застроената площ.
Второ ниво: спалня, баня с тоалетна, склад и тераса - 81,14 кв.м., която също не е включена в застроената площ.
Апартаментът е разположен на шести и седми етаж от общо седем. Отоплението е предвидено на ТЕЦ. Изложението е запад, юг.
Бутикова сграда, разполагаща с апартаменти, търговски обекти, подземни и надземни паркоместа. В проекта са заложени апартаменти с функционални разпределения, благоприятни изложения и минимален процент общи части.
Сградата е след Акт 14 и ще бъде завършена през 2026г.
Инвеститорът е с дългогодишен опит, има повече от 10 завършени сгради с обща застроена площ над 80 000 кв.м, както в столицата, така и по черноморски и планински курорти.
В близост до бул. България , бул. Цар Борис III и бул. Гоце Делчев , което осигурява бърз достъп до централната част на столицата и останалите райони на града. Местоположението на сградата е перфектно обезпечено от спирки на градски транспорт - на 200 м от метростанция Красно село , на 300 м от спирки на тролеи, трамваи и автобуси.
В непосредствена близост има детски градини, училища, множество търговски обекти, пазар Красно село , ресторанти, заведения за бързо хранене и разнообразие от магазини за всички нужди на един човек.
БИЛДИНГ БОКС предоставя безплатна консултация и съдействие при финансиране на избрания от Вас имот.
Оферта 7765







