Представяме възможност да станете част от един модерен жилищен проект, разположен в живописна и тиха местност край морето, само на няколко минути от центъра на Варна. Проектът предлага функционални и стилни апартаменти двустайни, тристайни и четиристайни идеални както за живеене, така и за инвестиция.
Параметри на имота
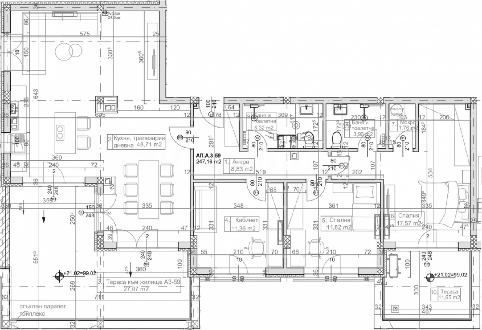
Жилището с обща площ от 203 кв.м е разположено на 7-и етаж от 7.
Сградата е седеметажна и ще приюти 64 апартамента, разпределени в две елегантни тела. Жилищата впечатляват с практични разпределения, оптимално използване на площта и завършване по БДС.
Комплексът е проектиран като затворено пространство с контрол на достъпа, уют и сигурност за цялото семейство. Разположен в зелен пояс с чист въздух и естествена сянка от вековни дървета, той предлага просторна градина от 4 дка, зони за отдих, детски площадки, алеи за разходка и обособени места за спорт.
Удобства и предимства:
Паркоместа и гаражи, разположени на четири нива, с независим достъп за максимално удобство;
Четири отделни входа осигуряват лесна връзка между жилищата и зоните за паркиране;
Внедрени енергийно ефективни решения, качествена изолация и дограма от висок клас гарантират ниски разходи и отличен микроклимат.Този проект се намира в непосредствена близост до популярни плажове, минерални извори и туристически обекти, и същевременно предлага бърз достъп до Варна както с автомобил, така и с обществен транспорт. Близо са и магазини, автобусни спирки и места за разходка и почивка.
Апартаменти за всеки стил на живот:
Компактни апартаменти идеални за млади хора и ваканционен отдих;
Двустайни жилища уют и функционалност за динамично ежедневие;
Тристайни апартаменти баланс между простор и уют за всяко семейство;
Четиристайни апартаменти с усещане за дом, стабилност и въздух.Схема на плащане:
30% при подписване на предварителен договор;
40% при представяне на Акт ...
За повече информация свържете се с нас и цитирайте референтния номер на имота. Моля, кажете, че сте видeли обявата в този сайт.
Референтен номер: Casa Elara - VAR-131117
Тел: +359 889 007 010
Моб: +359 877 777 888 (WhatsApp, Viber, SMS)
Отговорен брокер:Стоунхард ПРЕМИЪР
Виж всички обяви в stonehardbg.bazar.bg или тук







