Референтен номер: VAR-138344
Представяме четиристаен апартамент в луксозен комплекс с невероятна морска панорама в най-зеления район на град Варна - Св. Св. Константин и Елена, на 120 м от плажа, на 10 минути от централната част на града, сред зеленина, тишина, чист въздух, уют и спокойствие в естествен парк, до автобусна спирка на градския транспорт, на 20 минути до международно летище.
БЕЗ КОМИСИОНА!
Сградата е в процес на строителство, Акт 16 е предвиден до края на 2028 г.
Комплексът е разположен върху терен от 6962 кв.м. Цялостната му концепция е насочена към качествен и здравословен начин на живот, отговарящ на очакванията за по-висок стандарт, сигурност, комфорт, зеленина и удобства в близост.
Състои се от две сгради с красива морска панорама, закрит паркинг, богато озеленено парково пространство, открит басейн, СПА и медицински център със закрит басейн и фитнес, рецепция така бъдещите собственици ще получат своите пълноценни удобства, уют и комфорт на обитаване.
Предлага двустайни, тристайни и четиристайни апартаменти, луксозно завършени 'до ключ'.
В комплекса са заложени най-съвременни технологии и високачествени строителни материали, проект с Енергийна ефективност клас 'А'.
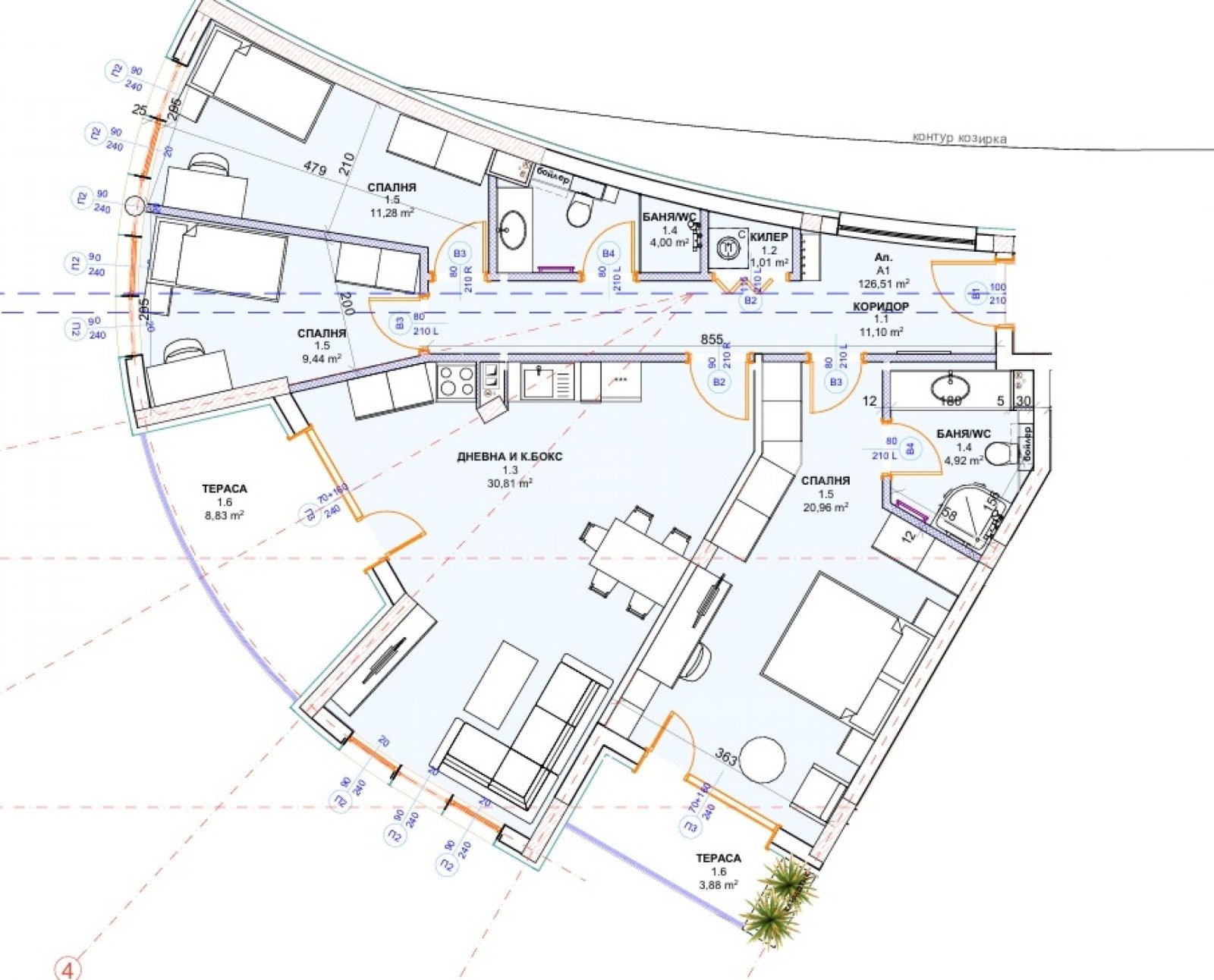
Жилището с обща площ от 157,84 кв.м е разположено на 2-ри етаж от 6.
Технически характеристики:
френски прозорци;
стени и тавани с екологична гипсова мазилка;
италиански висококачествен гранитогрес и/или ламинат на подовете;
луксозно завършени бани с висококачествен италиански гранитогрес, санитарен фаянс, структури за вграждане, душ прегради от закалено стъкло, линейни сифони, бойлер;
напълно оборудвани немски кухни Nolte с уреди BOSCH;
инсталирана противопожарна система;
инсталирана домофонна система (с възможност за видео връзка);
скрито окабеляване за оптичен интернет и телевизия;
лоджии със стъклени парапети от ламинирано стъкло (триплекс) и ...
За повече информация свържете се с нас и цитирайте референтния номер на имота. Моля, кажете, че сте видeли обявата в този сайт.
Референтен номер: VAR-138344
Тел: +359 889 007 010
Моб: +359 877 777 888 (WhatsApp, Viber, SMS)
Отговорен брокер:Стоунхард ПРЕМИЪР
Без комисиона от купувача







