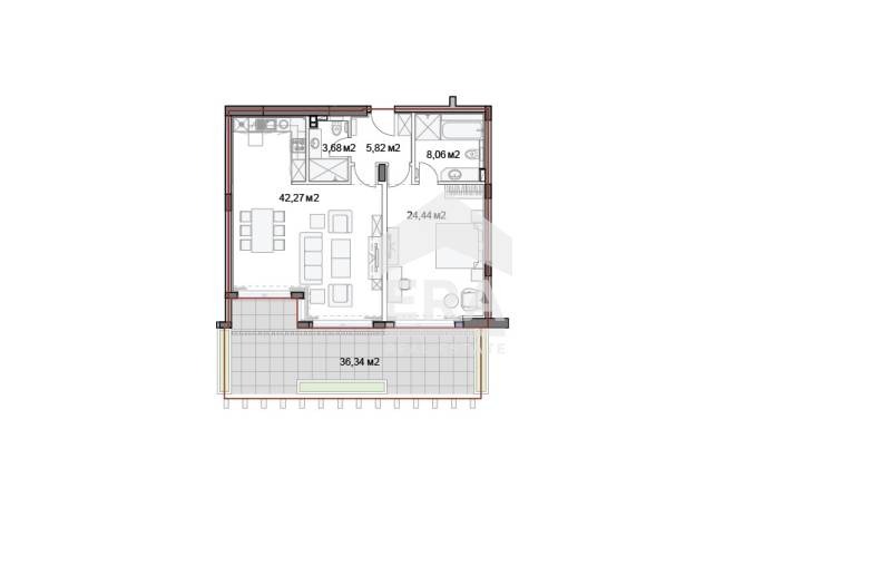
ЕРА Лайф обявява за продажба двустаен апартамент с площ 163,45 м2, разположен на етаж 4 в Sunny Day Residence 2. Имотът е със следното разпределение: антре (5,82 м2), дневен тракт с кухненска част (42,27 м2), спалня (24,44 м2), килер (3,68 м2), санитарно помещение (8,06 м2), както и просторна тераса (36,34 м2). Изложение: изток / запад. Статус: двустаен апартамент.
Жилището се намира в сграда със съвременна архитектура на брега на морето. В строежа са вложени най-висок клас материали и качествено изпълнение. Луксозните стълбища и общи части имат изградени вентилация, канализационна инсталация, включваща инсталация за отводняване на климатичните тела, пожароизвестителна инсталация, заземителна инсталация, надеждна електро инсталация с висока степен на защита. Предвидено е дежурно и евакуационно осветление. Отоплението, вентилацията и климатизацията в сградата са осигурени чрез напълно изградена инверторна VRV климатична система с охлаждане и отопление на фирма DAIKIN, с директно изпарение, с монтирани вътрешни тела за скрит таванен монтаж.
Сградата е изпълнена с вентилируема фасада с топлоизолация от минерална вата, а плоския покрив е топло, паро и хидро изолиран, което гарантира качество и дълготрайност. Прозорците са реализирани със стъклопакети висок клас алуминиева дограма Sch?co. Три броя панорамни асансьори на водещия световен производител Schindlеr са на разположение на живущите. Въвеждане в експлоатация януари 2022г.
Имотът е подходящ за целогодишно живеене. Съчетанието от естествен парк с дървесни видове и красива плажна ивица, правят уникално предложението за продажба на този апартамент. Предлага се с цялото налично обзавеждане и оборудване.
Разположен в малък тих залив с източно изложение, комплекса предлага великолепни условия за развлечения и отмора. Само на 8 км. южно от Златни пясъци, на 10 км. от град Варна и на 16 км. от Летище Варна, комплексът съчетава в себе си добра локация и приказно място за релакс. Комплекс Sunny Day е разположен между естествен парк с редки дървесни видове и красива плажна ивица. Код: 0709032
Оферта 0709032







