Екип SART Ви предлага за продажба тристаен апартамент в новострояща се сграда - кв. Левски, гр. Варна
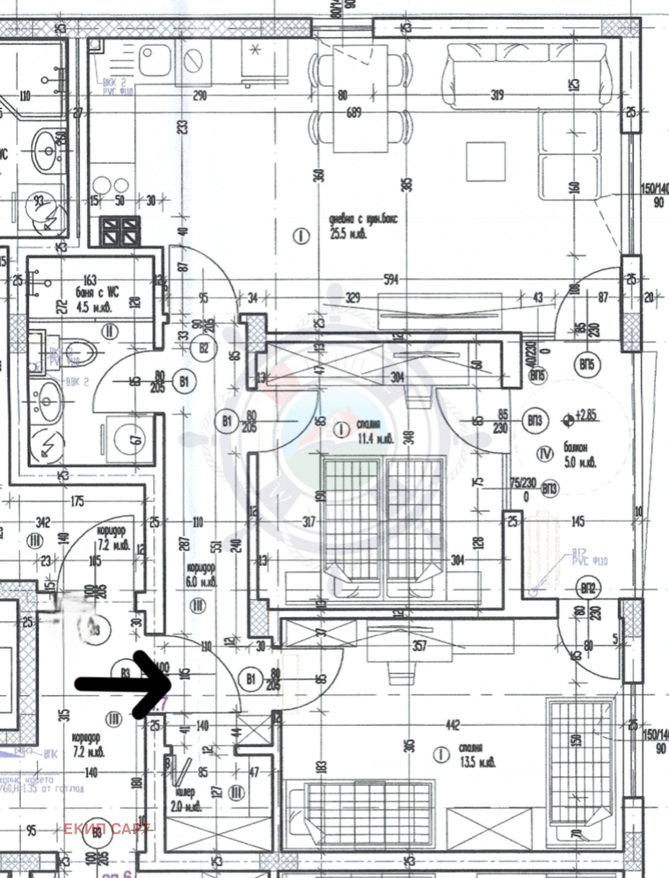
Жилището се намира на 2/9 етаж и се състои от дневна с кухненски бокс, две спални, баня с тоалетна, килер, коридор и балкон. Апартаментът е с изложение: Североизточен. Възможност за закупуване на подземно или открито паркомясто.
Модерна сграда в начален етап на строителство. Сградата ще бъде изградена със съвременен дизайн и качествени материали, съвременни технологии и енергийна ефективност. Проектът разполага с двустайни, тристайни и четиристайни апартаменти, които ще се издават по БДС. В момента се изгражда грубия строеж. Планирано завършване 2027 г. Доказан инвеститор предлагащ гъвкави схеми на плащане.
Локация: На пешеходно разстояние от университети, училище, детски градини, спортен комплекс, магазини, близо до спирки на градски транспорт, както и други магазини и заведения, лесен достъп до главни булеварди, което прави ежедневието по-лесно и удобно. Районът е изпълнен със зелени площи за разходки, предоставяйки комфорт в съвременния живот с достъп до всичко необходимо.
Агенцията съдейства за проучване и отпускане на банков кредит при възможно най-добри условия за клиента!
Извършваме всички правни и технически проверки на имота, помагаме при вадене на необходимите документи, работим заедно с клиентите си в Екип до изповядване на сделката пред нотариус.







