БУЛ ИМОТ ПРОДАВА!
3-стаен апартамент в гр. Варна, кв. Левски отличен избор за семейно жилище или инвестиция! 🏡✨ Светли и функционални помещения, практично разпределение и удобна локация в един от най-предпочитаните квартали на морската столица.
📍 Локация: Варна, кв. Левски
💶 Цена: 166 340
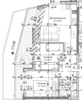
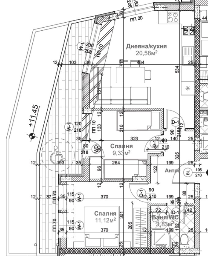
📐 Общa площ: 90 кв.м
🏠 Вид имот: 3-стаен апартамент
Основни характеристики:
🛋️ Общо стаи: 3 (дневна + 2 спални)
🛏️ Спални: 2 удобни и добре осветени
🚿 Санитарни помещения: 1 баня с тоалетна + 1 отделна тоалетна
🌅 Балкон: 1 подходящ за сутрешно кафе и зеленина
🛗 Асансьор: да лесен и удобен достъп
🧱 Мазе: да допълнително място за съхранение
Предимства на имота:
🌞 Светъл и функционален апартамент с удобно разпределение
🧭 Практична планировка отделни спални и комфортна дневна зона
🔇 Тих вътрешен комфорт, подходящ за семейства и работа от дома
🧺 Перално/складово пространство
Подходящ за:
👨👩👧👦 Семейства, които търсят уют и пространство
💼 Инвеститори търсена локация с отлична отдаваемост
За квартала:
Кв. Левски е динамичен и добре уреден район с отлична инфраструктура, бърз достъп до центъра, университети, търговски обекти, училища и градски транспорт. 🚇🛒
Спокойни улици, зелени пространства и приятна градска среда всичко необходимо за комфортен ежедневен живот. 🌳🏙️
Готов за оглед свържете се, за да запазите час! 📞✨0897885152,Ивелина Йорданова, реф. 15914







