Екип SART Ви предлага за продажба тристаен тухлен апартамент в м-т Сотира, град Варна.
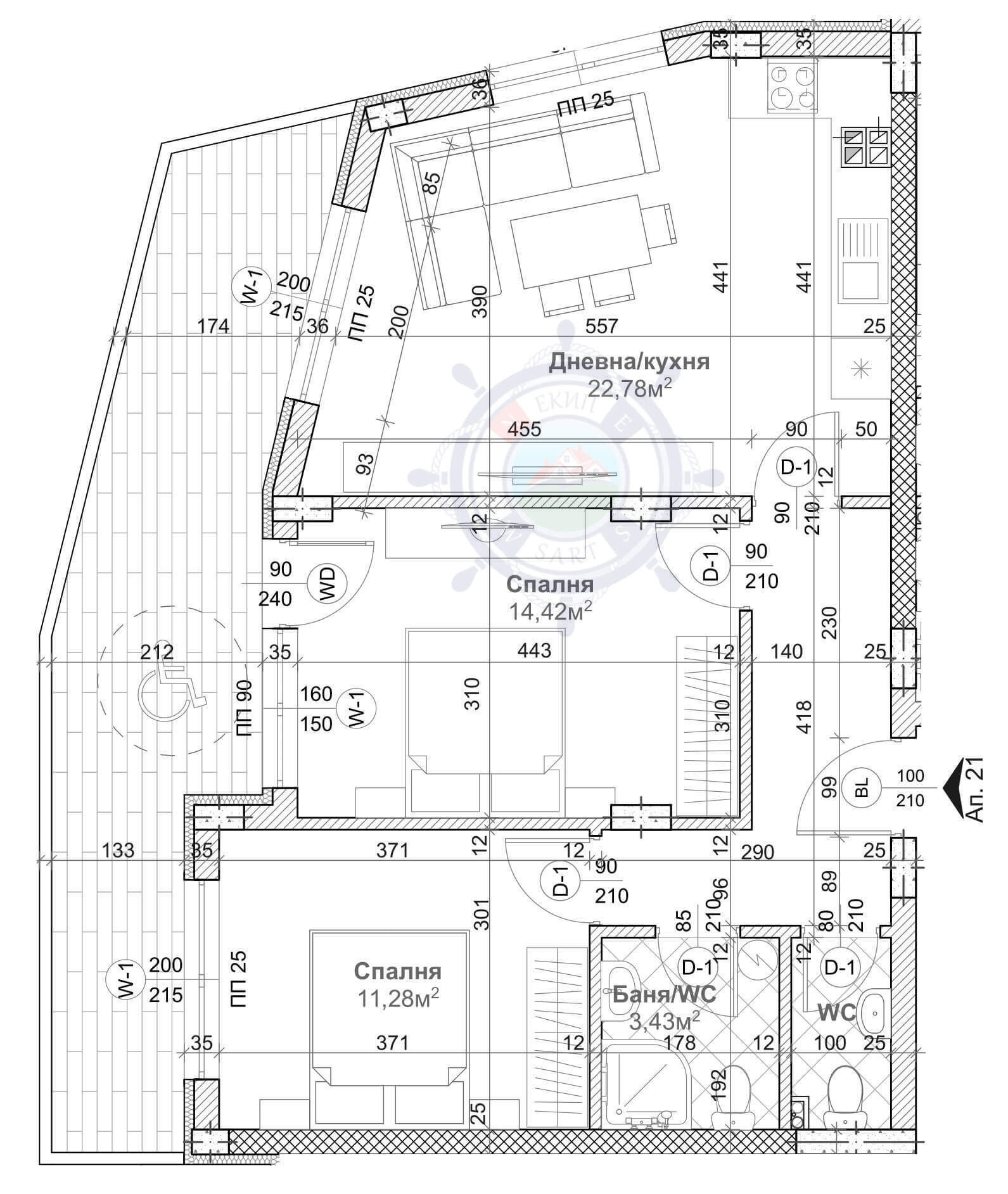
На обща площ от 108 кв. м са разпределени:
- просторна всекидневна с кухненска част и трапезария с площ 24 кв.м;
- спалня с площ 14кв.м;
- втора спалня с площ 11кв.м;
- баня с тоалет с площ 3.5 кв.м;
- тоалет с площ 1.5 кв.м;
- балкон;
- антре.
Застроена площ 92 кв.м.
Към имота има маза 4.5 кв.м.
Възможност за закупуване на паркомясто.
Нова бутикова сграда в строеж. Разсрочено плащане. Срок на завършване 2026г.
Апартаментите ще се издават по БДС.
Сградата се намира в м-т Сотира над бул. 'Христо Смирненски'. В близост са разположени УМБАЛ 'Света Марина', Очна клиника 'Света Петка', Технически университет хипермаркети Kaufland и Lidl.
Агенцията съдейства за проучване и отпускане на банков кредит при възможно най-добри условия за клиента!
Извършваме всички правни и технически проверки на имота, помагаме при вадене на необходимите документи, работим заедно с клиентите си в Екип до изповядване на сделката пред нотариус.







