Нова пететажна кооперация в квартал Железник - запад. Предлага разнообразие от жилища, с различна площ, изложение и разпределение.
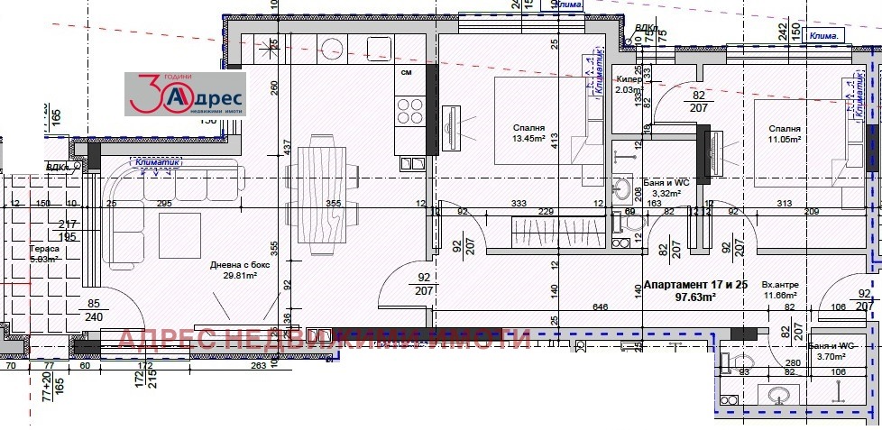
ТРИСТАЕН апартамент с площ от 119 кв. м. Състои се от антре, всекидневна с кухненски бокс, две спални, баня и тоалетна и балкон. С изложение юг- запад. ТРИСТАЙНИЯТ апартамент ще бъде издаден в следния вид: стени и тавани шпакловка, под замазка, тераси гранитогрес, ел. инсталация до фасунга и ключ, ПВЦ дограма. Възможност за закупуване на гараж.
СГРАДА: ТРИСТАЕН апартамент в малка кооперация на пет етажа с луксозни общи части и асансьор.
МЕСТОПОЛОЖЕНИЕ: ТРИСТАЕН апартамент в град Стара Загора, в квартал Железник запад, на тихо място, в близост - химермаркет, автобусна спирка.
ПРЕДИМСТВА: Разсрочено плащане; Избор на етаж.
Обади се СЕГА и цитирай този код: 611136







