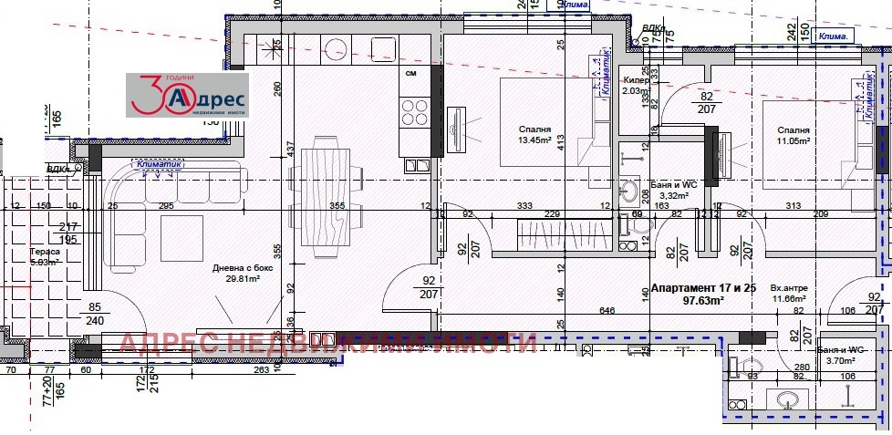
ТРИСТАЕН апартамент с площ от 118 кв. м. Състои се от антре, всекидневна с кухненски бокс, две спални, баня и тоалетна и балкон. С изложение юг- запад. ТРИСТАЙНИЯТ апартамент ще бъде издаден в следния вид: стени и тавани шпакловка, под замазка, тераси гранитогрес, ел. инсталация до фасунга и ключ, ПВЦ дограма. Възможност за закупуване на гараж.
СГРАДА:ТРИСТАЕН апартамент в малка кооперация на пет етажа с луксозни общи части и асансьор.
МЕСТОПОЛОЖЕНИЕ:ТРИСТАЕН апартамент в град Стара Загора, в квартал Железник запад, на тихо място, в близост- хипермаркет, автобусна спирка.
ПРЕДИМСТВА:* Разсрочено плащане;* Избор на етаж.
Обади се СЕГА и цитирай този код: 611136
Виж всички обяви в address_sz.bazar.bg или тук
        
       
         
         
         
             
             
            






