Обади се сега и цитирай този код: 540464
Сграда
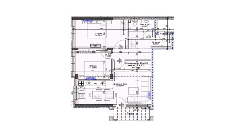
Новострояща се пет етажна монолитна сграда, с луксозни общи части и асансьор.Срок на завършване 2023г.
Предимства
Ново строителство, добра локация в квартала, дневна с две изложения.
Местоположение
ТРИСТАЕЙНИЯТ нов апартамент се намира в западната част на Стара Загора в кв. 'Железник'.
Виж всички обяви в address_sz.bazar.bg или тук
        
       
         
         
         
             
             
            






