Референтен номер: SOF-133049
Представяме комфортен двустаен апартамент с площ от 67 кв.м, разположен на трети етаж от шест в новострояща се сграда четвъртата поред от утвърден жилищен комплекс в град Елин Пелин. Градът е предпочитано място за живеене поради близостта си до София, добрата инфраструктура, зеленина и бърз достъп по автомагистрала Тракия .
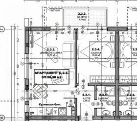
Характеристики на имота:
Функционално разпределение: дневна с кухненски бокс, самостоятелна спалня, баня с тоалетна, входно антре и балкон;
Изложение: благоприятно - юг/запад, светли и топли помещения.
Акт 16 до края на 2026 г.
*Има Акт 14.
*
Жилището се предлага в степен на завършеност по БДС: гипсокартон по стените, замазка на пода, шесткамерна PVC дограма с френски прозорци, блиндирана входна врата, изградени ел. и ВиК инсталации, тераси с парапети тип балюстри и матиран гранитогрес. В сградата е предвиден 8-местен асансьор, а общите части ще бъдат завършени с висококачествени материали мрамор и декоративни елементи.
Срещу допълнително заплащане се предлага завършване до ключ , интериорен дизайн и обзавеждане.
За сградата
Сградата е част от вече развит жилищен комплекс в тиха и зелена зона с бърз достъп до Цариградско и Ботевградско шосе. В близост е до Фантастико, училище, детска градина, аптека и здравно заведение.
Таксата поддръжка е 50 лв. (26 евро) на месец и включва денонощна охрана, видеонаблюдение, поддръжка на общите части и озеленяването, както и вътрешен транспорт до София.
Защо да изберете Елин Пелин
Разположен само на около 25 минути от центъра на София, Елин Пелин предлага спокойствие, чист въздух и усещане за уредена малка общност, без да се лишавате от удобствата на града. Районът е добре свързан с бърз достъп по основни ...
Цената на имота е 103 850 евро / 203 112.95 лв. без ДДС или 124 620 евро / 243 735.53 лв. с ДДС. Данъчен кредит може да се ползва при определени условия.
За повече информация свържете се с нас и цитирайте референтния номер на имота. Моля, кажете, че сте видeли обявата в този сайт.
Референтен номер: SOF-133049
Тел: +359 889 007 010
Моб: +359 877 777 888 (WhatsApp, Viber, SMS)
Отговорен брокер:Стоунхард ПРЕМИЪР







