Ексклузивно представяме двустаен мезонет за продажба в 7 Angels - луксозен жилищно-ваканционен комплекс, разположен сред вековните борови гори на величествената Рила планина.
Проектът ще бъде изпълнен без компромиси и има амбицията да се превърне в една от най-реномираните и престижни резиденции в аристократичния планински курорт на България, основан от цар Фердинанд преди повече от 120 години. Проектът е свързан с цялостно преустройство на двете съществуващи сгради на бившия хотел 'Зодиак' в курорта Боровец и превръщането му луксозна планинска резиденция с комфортни апартаменти и широка гама от удобства за своите обитатели.
Етапи на строителство:
Старт на строителството: 08.2025 г.
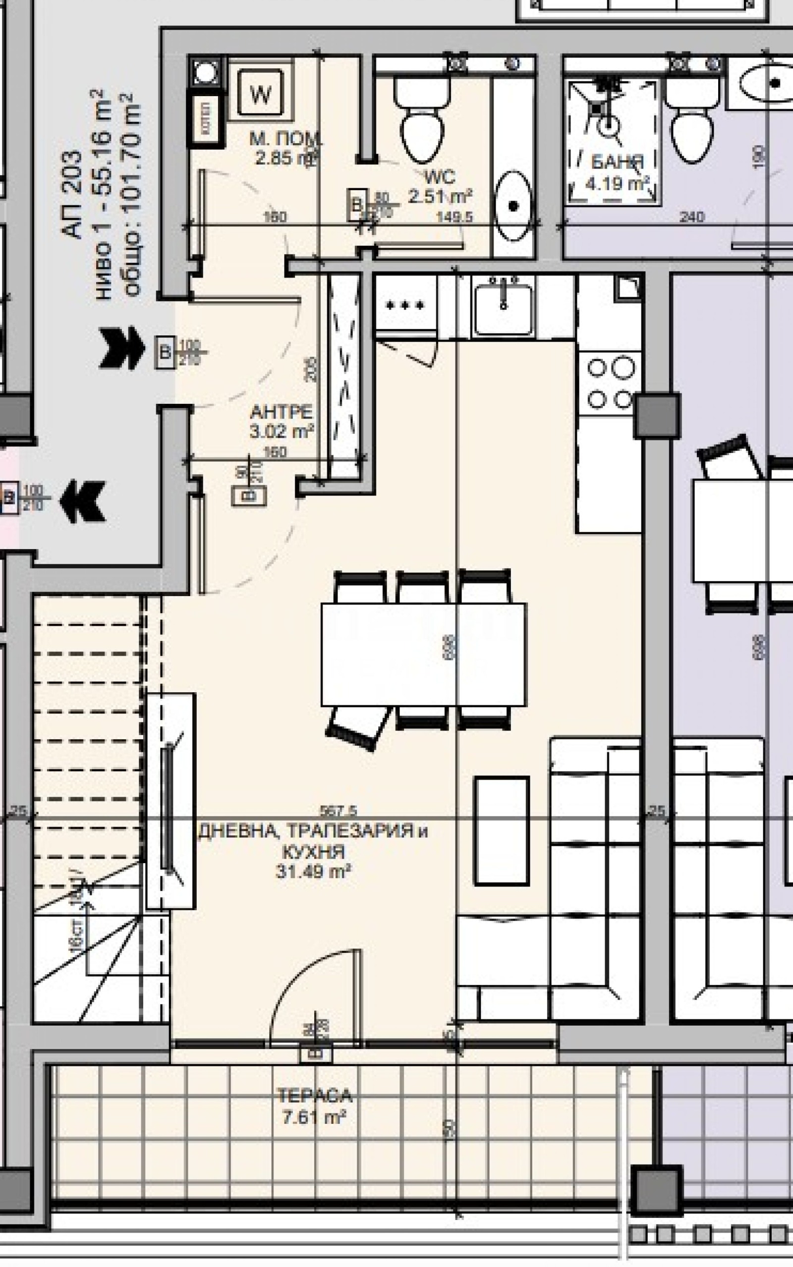
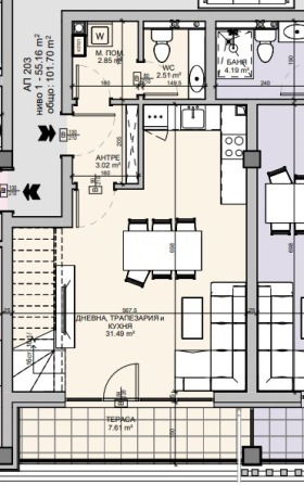
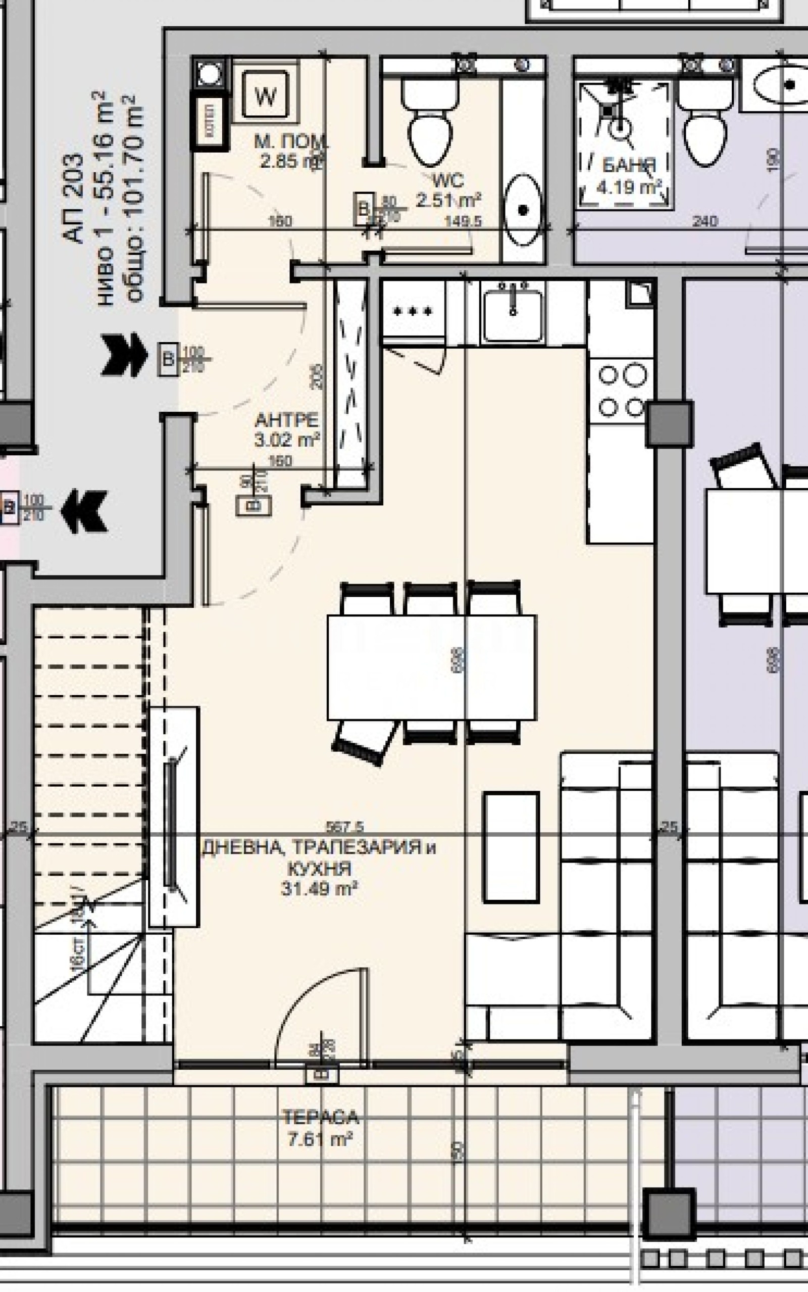
Завършване: декември 2026 г. Имотът е ситуиран на 2-ри и 3-ти етаж и предлага 124.01 кв.м обща площ (нетна площ 101.92 кв.м + общи части 22.09 кв.м). На първото ниво са разпределени антре, всекидневна с кухня, тоалетна за гости, мокро помещение и тераса, а ниво две разполага със спалня, дрешник и баня с тоалетна.
Местоположение
Със своята уединена локация, на 1340 м надморска височина, Боровец предлага изключително чист въздух, а река Бистрица, която минава през целия курорт, има въздушно течение, което дава особена структура на въздуха и спомага за лечение и бързото възстановяване на човешкото здраве. Районът е идеално място за зимен и летен туризъм, ски, байкинг, планински поход, планинско бягане, скално катерене, парапланеризъм, конна езда. Разполага с 58 км различни ски писти и е подходящ както за начинаещи, така и за напреднали. Местоположението е с бърз достъп до центъра на курорта, на 900 м от кабинковия лифт и само на 50 м от 800-метрова ски писта за начинаещи.
Жилища с панорамни гледки - за ...
Цената на имота е 198 400 евро / 388 036.67 лв. без ДДС или 238 080 евро / 465 644.01 лв. с ДДС. Данъчен кредит може да се ползва при определени условия.
За повече информация свържете се с нас и цитирайте референтния номер на имота. Моля, кажете, че сте видeли обявата в този сайт.
Референтен номер: STO 117962
Тел: +359 889 007 010
Моб: +359 877 777 888 (WhatsApp, Viber, SMS)
Отговорен брокер:Стоунхард ПРЕМИЪР
Без комисиона от купувача
Виж всички обяви в stonehard.bazar.bg или тук







