Translations in other languages:
All real estate ads published on imot.bg have been translated into English and published on the partner site
Получихте нова обява по филтър





Промяна на цена на наблюдавана обява


стара цена
нова цена
imot.bg – обяви за продажби и наеми на имоти
Сайт за имоти №1
Translations in other languages:
All real estate ads published on imot.bg have been translated into English and published on the partner site
ДОБАВИ ОБЯВА Редакция на обява
Начало Добави обява Търсене Агенции Новини Кредити Вход / Регистрация
Дава под Наем МАГАЗИН
град София, Дружба 2
35 700 €
69 823.13 лв.

(7 €, 13.69 лв./m2)
Цената е без ДДС
История на цената
Публикувана в 15:29 на 4 март, 2026 год.
Обявата е посетена 136 пъти.
Площ:
5100 m2
Етаж:
Партер от 1
ТEЦ:
Лок.отопл.

Описание на имота:


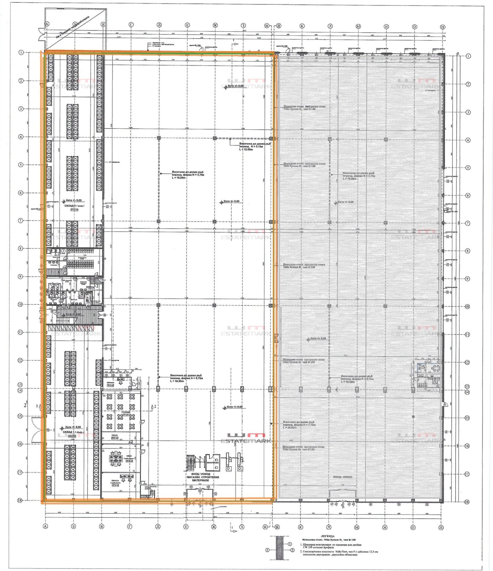
Търговски комплекс със следните характеристики:

- Работна височина: 8 -10 м /виж схемата /
- Стени и таван: 3 пластови термопанел 6 см, бетон 20 см и LT ламарина, Под - шлайфан бетон
- Пожароизвестителна система, Пожарногасителна инсталация, Димоотвеждане
- Вентилационна система: Климатизация - климатична система General Fujitsu, Мълниезащитна система
Комуникации:
-Електрическа мощност: до 300 kW;
-Вода;
-Промишлена канализация;

Обекта разполага със собствен паркинг за 120 автомобила.

Възможно наемането на по малки площи със следните квадратури: 2160, 1300, 865 кв.м.

За контакт:
📞 0876 394 766 Мариян Тодоров
Професионалист по недвижими имоти.
Особености
С паркомясто
СОТ
Климатик
Окабеляване
Интернет връзка
Видео наблюдение
Контрол на достъпа
За контакт:
0876394766
Брокер:
Мариян Тодоров
+359876394766
Още оферти от брокера: Продава | Дава под наем | Купува | Наема
Агенция:
ЕСТЕЙТ МАРК
0876394766
ЕСТЕЙТ МАРК logo
Медал за прослужено време
В imot.bg от 2008 г.
estatemark.imot.bg
Адрес:
област София, гр. София, ул. Гургулят 2
http://www.estatemark.eu
ИЗПРАТИ ЗАПИТВАНЕ
ИЗПРАТИ ЗАПИТВАНЕТО

Дава под Наем МАГАЗИН
град София, Дружба 2
Обява: 2m177263094912226

35 700 €
69 823.13 лв.
История на цената
(7 €, 13.69 лв./m2)

Цената е без ДДС
ЗАПАЗИ ОБЯВАТА

Местоположение: град София, Дружба 2

Виж още наеми от София или още Магазини в София
Допълнителни данни за имотите в района и сравнение с други райони

Покажи

Период

и 3 месеца

* Средните цени са определени чрез медианна стойност
Още обяви в imot.bg
Обяви за имоти Наеми Наеми в град София Наеми в Дружба 2 Наеми на Магазини
Въпроси и предложения към imot.bg
КОНТАКТИ | SMS КОДОВЕ | ПОМОЩ | ОБЩИ УСЛОВИЯ | РЕКЛАМА | ЗАЩИТА НА ЛИЧНИТЕ ДАННИ | КАРТА НА САЙТА |
Резон Медия | Автомобили | Работа | Новини | Обяви 2002-2026 ® Copyright imot.bg
© imot.bg ползва и препоръчва хостинг услугите на Bulinfo.net
Следвайте ни в: