Търговски комплекс със следните характеристики:
- Работна височина: 8 -10 м /виж схемата /
- Стени и таван: 3 пластови термопанел 6 см, бетон 20 см и LT ламарина, Под - шлайфан бетон
- Пожароизвестителна система, Пожарногасителна инсталация, Димоотвеждане
- Вентилационна система: Климатизация - климатична система General Fujitsu, Мълниезащитна система
Комуникации:
-Електрическа мощност: до 300 kW;
-Вода;
-Промишлена канализация;
Обекта разполага със собствен паркинг за 120 автомобила.
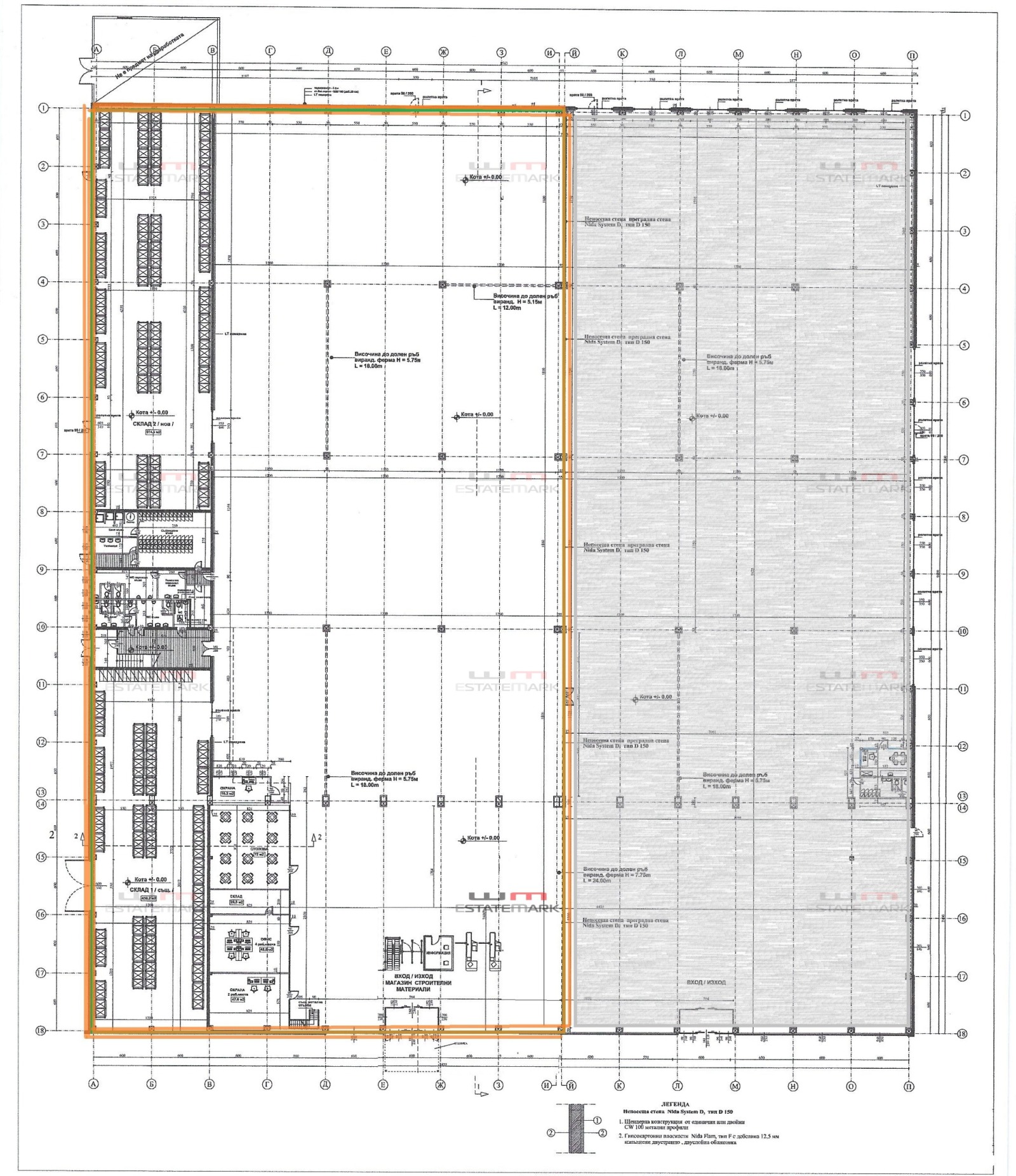
Възможно наемането на по малки площи със следните квадратури: 2160, 1300, 865 кв.м.
За контакт:
📞 0876 394 766 Мариян Тодоров
Професионалист по недвижими имоти.







