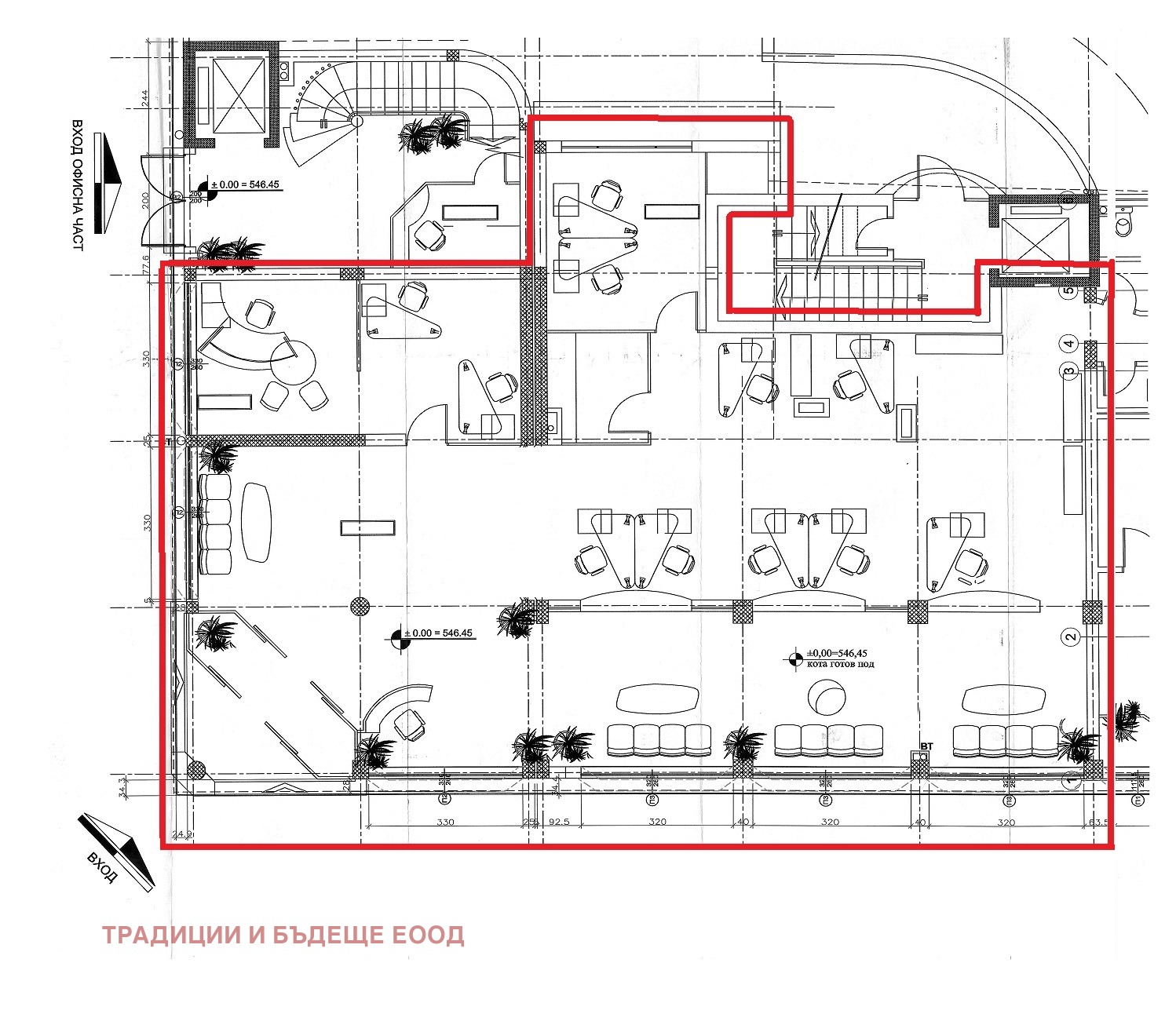
ЪГЛОВ МАГАЗИН 177 м² в офис сграда на централен булевард близо до метростанция Константин Величков.
Състои се от еднопространствено помещение, кабинет, кухня, WC, сърварно помещение и складово помещение. Изложението е югоизток/запад. Отоплението и охлаждането са посредством климатици.
Разположен е на партерен етаж в елегантна бизнес сграда с контрол на достъпа на централен булевард.
Подходящ е за банков офис, представителен магазин, офис и др.
Възможен гратисен период за ремонт според изискванията на бъдещия наемател.
Подписването на договор е с един месечен наем и два депозита.
Такса смет 50 лв/месец.
Традиции и Бъдеще
www.traditionsandfuture.bg
[email protected]
За контакт тел: +359 888 86 76 00



