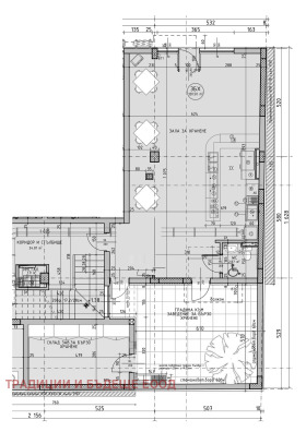
ПОМЕЩЕНИЕ 307 м² на централен булевард близо до метростанция.
Състои се от еднопространствено помещение, което по проект е разпределено в зала, кухня, гардероб, складово помещение, WC и тераса, но може да се адаптира спрямо нуждите на наемателя. Изложението е юг.
Помещението е със височина 3.50 метра, вход от булеварда, достъп до товарен вход към склада, самостоятелен водомер, трифазен ток, отопление и охлаждане с японска климатична VRF система.
Разположено е на партерен етаж в елегантна сградата с окачена фасада и дограма със стъклопакет от най-висок клас с аргон и сребърно покритие за най-добра топло и слънце защита.
Помещението е с отлична видимост на главен булевард с интензивен трафик, което го прави подходящо за ресторант, супермаркет, представителен офис, клиника и др.
Традиции и Бъдеще
www.traditionsandfuture.bg
[email protected]
За контакт тел: +359 888 86 76 00







