Продава се УПИ 3341 м2.
С РАЗРЕШЕНИЕ ЗА СТРОЕЖ НА СГРАДА С ОБЩО РЗП 8000 м2.
От тези 8000 м2, 3600 м2 са подземен паркинг.
Парцела е с параметри КИНТ 3.5 което позволява около 10 000 м2 надземно РЗП.
ПРОЕКТА МОЖЕ ДА БЪДЕ ПРЕРАБОТЕН ПО ЧЛ. 154.
ПОДХОДЯЩО ЗА ОФИС СГРАДА, ШОУРУМ, СКЛАД, ТЪРГОВСКИ ЦЕНТЪР, ИЗЛОЖЕБЕНА ЗАЛА ЗА АВТОМОИЛИ И ДРУГИ.
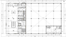
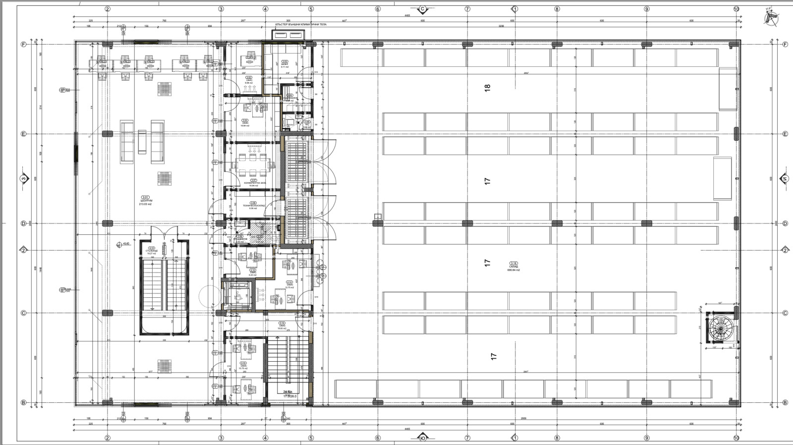
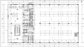
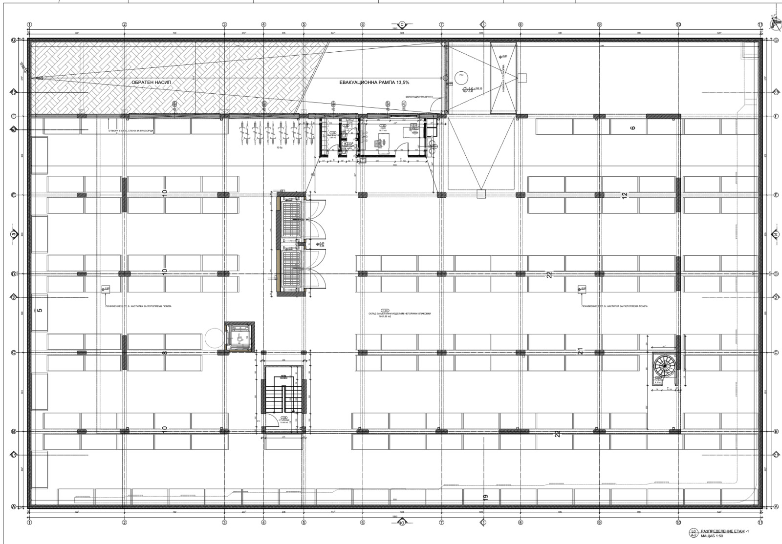
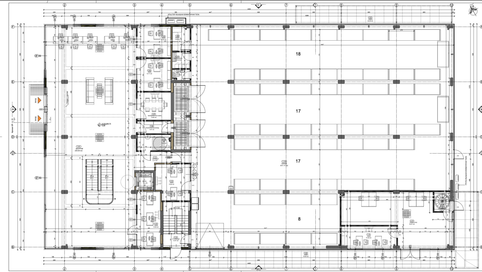
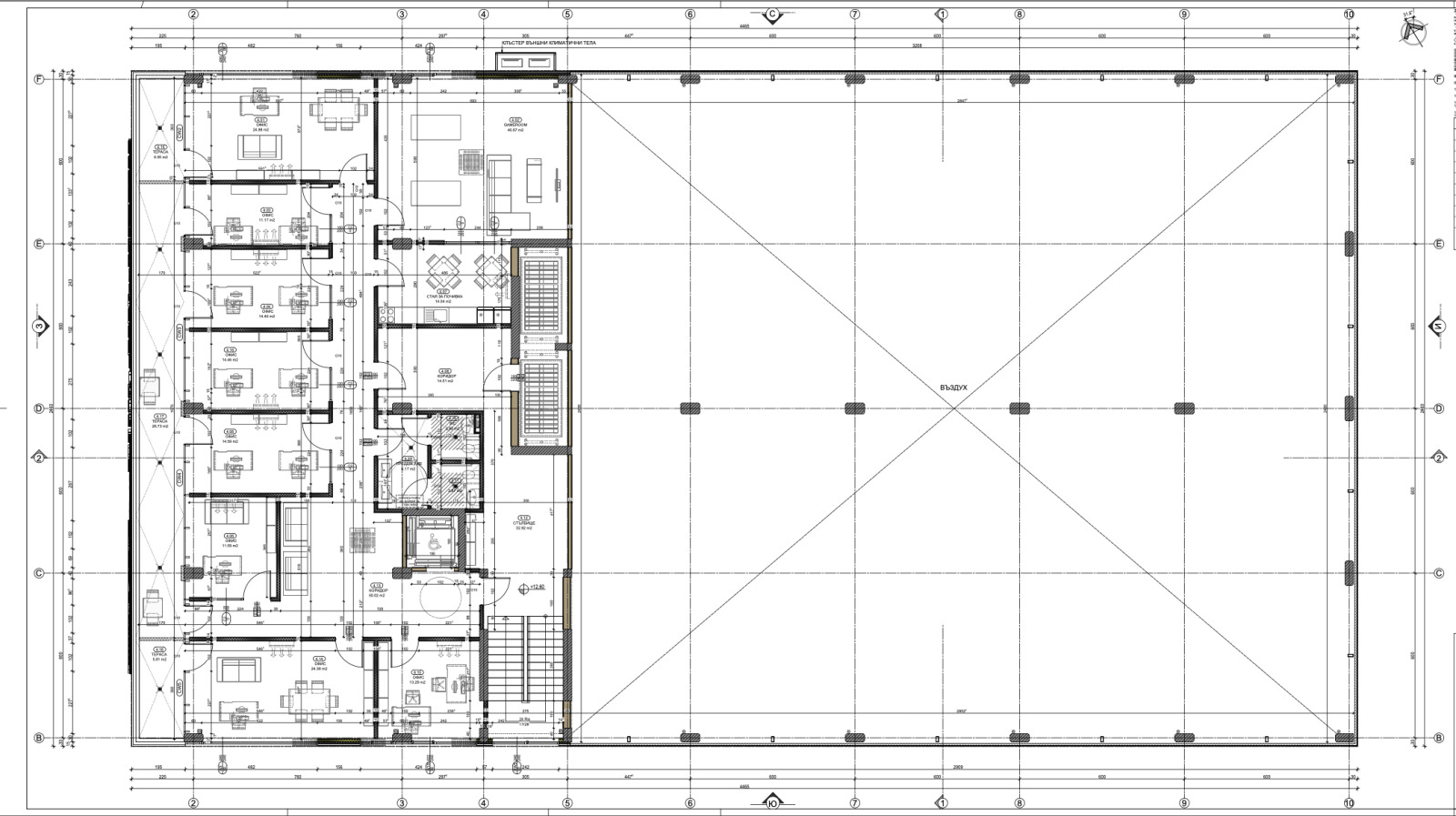
РАЗПРЕДЕЛЕНИЕ:
Етаж -2: ПАРКИНГ (1800 м2)
Етаж -1: ПАРКИНГ (1800 м2)
Етаж 1: ШОУРУМ/ОФИСИ/СКЛАДОВЕ (1100 м2)
Етаж 2: ШОУРУМ/ОФИСИ/СКЛАДОВЕ (1100 м2)
Етаж 3: ОФИСИ/СКЛАДОВЕ (1100 м2)
Етаж 4: ОФИСИ СКЛАДОВЕ (1100 м2)







