СГРАДА С ОФИСИ И СКЛАДОВА ПЛОЩ
Имаме удоволствието да Ви представим парцел на бул. Европа с площ 8000 кв. м. и проект за офис сграда със складова част с РЗП - 2760 кв. м.
Имотът е подходяща за автосервиз, търговия с нехранителни и промишлени стоки, производство, логистичен център и др. Намира се на удобна локация с лесен достъп за камиони и тирове.
В момента в имота се изгражда 'Нежилищна сграда - складове и офиси', с РЗП 2757 кв.м., ЗП 2372 кв.м., като планираният срок за завършване е май 2026 г.
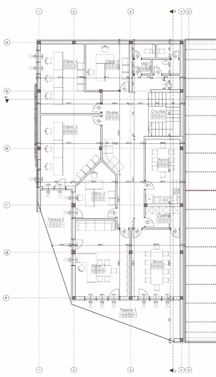
Офисната част е разположена на три нива, на партерния етаж е предвидено фоайе, шоурум, офис, два склада и санитарно помещение. На междинния етаж е предвидено фоайе, зала за срещи, офис, два склада, санитарен възел. На ниво три е предвидено да бъдат разположени четири офиса, зала за срещи, помещение за отдих на персонала, склад, санитарни помещения. Складовата част се състои от четири складови помещения, към тях са предвидени канцеларии със санитарни възли.
При предварителен договор по време на строителството могат да бъдат направени промени по желание на купувача, с цел удовлетворяване нуждите на конкретния бизнес.
При интерес, може да се свържете с нас на тел: 0879 833 333.







