Представяме Ви МНОГОФУНКЦИОНАЛЕН ОФИС на отлична локация и непосредствена близост до бул. 'Симеоновско шосе' - ул. Братя Чакрин 10.
Мястото е изключително комуникативно, в близост са бдеща метростанция, спирки на градски транспорт, хипермаркет 'Кауфланд', банки, фитнеси и медицински центрове.
За Ваше улеснение и придобиване на представа за локацията на бъдещата метростанция спрямо предлагания от нас офис, прилагаме генерална схема на метрото в София. Имотът е изключително функционален и може да бъде ползван за най-различен вид търговска дейност.
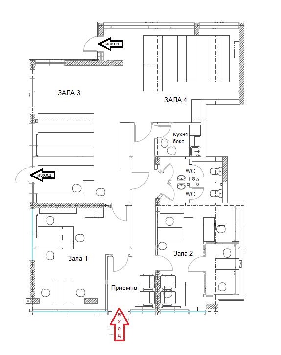
Офисът е разположен на партерен етаж с чиста застроена площ от 173 кв.м. Приемната и две от залите са с гоелми френски прозорци и лице към улицата. Разполага с три отделни входа. За допълнителна сигурност са монтирани ролетни решетъчни врати на всеки вход и изход. Вградено окабеляване и климатици във всяка зала. Настилки са гранитогрес и ламиниран паркет, а тавана е растерен окачен.
Разпределението е следното:
-Приемна
-Коридор
-Голяма работна зала с два отделни входа
(възможност за разделяне на две отделни зали при нужда)
-Конферентна зала
-Трета отделна зала
-Кухненски бокс
-Две санитарни въъзела
Цената е без ДДС.
Обадете се сега и цитирайте този код: 51 158







