Представяме Ви МНОГОФУНКЦИОНАЛЕН ИМОТ на отлична локация и непосредствена близост до бул. 'Симеоновско шосе' - ул. Братя Чакрин 10.
Мястото е изключително комуникативно, в близост са бдеща метростанция, спирки на градски транспорт, хипермаркет 'Кауфланд', банки, фитнеси и медицински центрове. За Ваше улеснение и придобиване на представа за локацията на бдещата метростанция спрямо предлагания от нас имот, прилагаме генерална схема на метрото в София. Имотът изключително функционален и може да бъде ползван за най-различен вид търговска дейност.
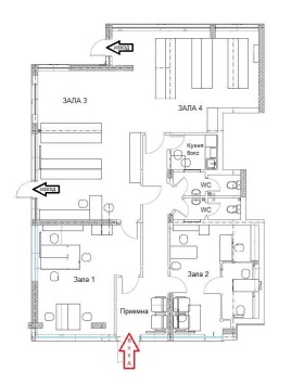
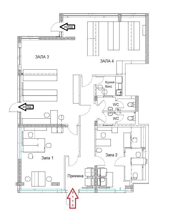
Офисът е разположен на партерен етаж с чиста застроена площ от 173 кв.м. Две от залите са с гоелми френски прозорци и лице към улицата. Разполага с три отделни входа. За допълнителна сигурност са монтирани ролетни решетъчни врати на всеки вход и изход. Вградено окабеляване и климатици във всяка зала. Настилки са гранитогрес и ламиниран паркет, а тавана е растерен окачен.
Разпределението е следното:
Приемна
Голяма работна зала с два отделни входа
(възможност за разделяне на две отделни зали при нужда)
Конферентна зала
Трета отделна зала
Кухненски бокс
Две тоаелтни
Офисът се продава необзаведен!
Еволют - Недвижими имоти предоставя безплатно съдействие и консултация за ипотечни кредити от всички водещи банки в страната!
Цената е без ДДС.
Обадете се сега и цитирайте този код: 63 233







