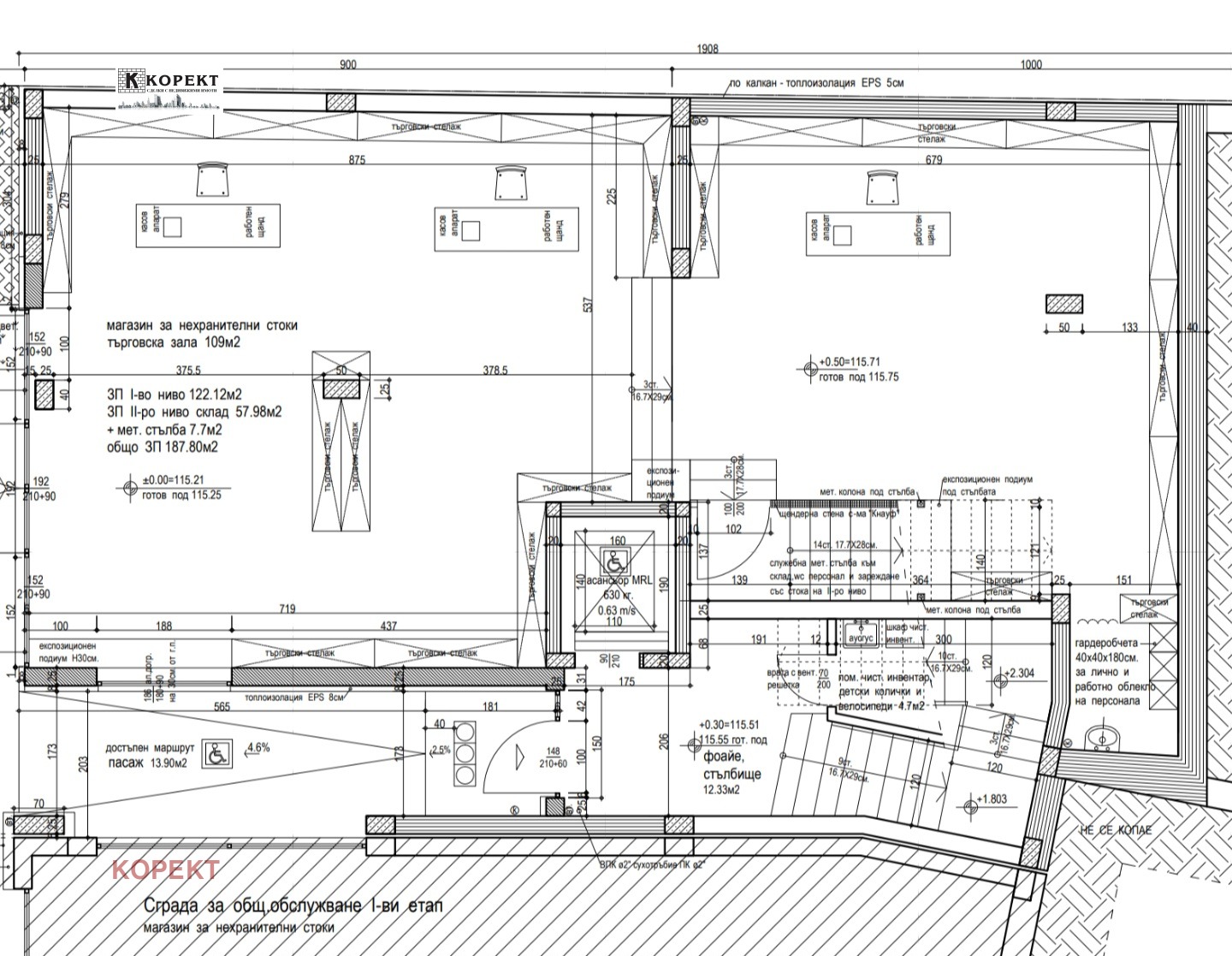
I ет. - две търговски зали, със ЗП 122,12кв.м.;
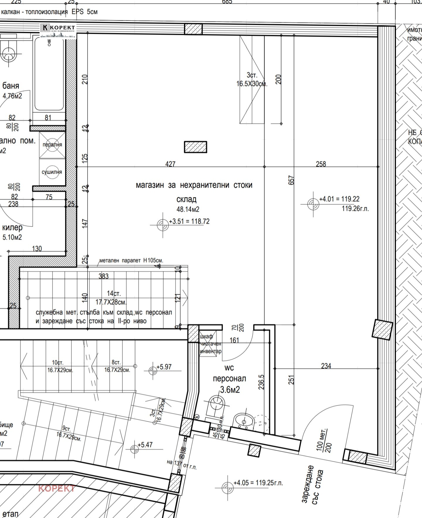
II ет. - складово и санитарно помещение със ЗП 65,68кв.м.;
Площ с % ид. части от общите части на сградата - 241,51кв.м.
Изложение: изток. Имотът ще бъде издаден до ключ! Подова настилка - гранитогрес, окачени тавани с лед осветление, стени - латекс, обкичен санитарен възел.
Възможност за закупуване на тристаен апартамент на първо ниво, граничещ със складовото помещение на магазина!
Виж всички обяви в korekt75.bazar.bg или тук
        
       
         
         
         
         
         
         
         
         
         
             
             
             
             
             
             
             
             
            






