Премиум къща с 4 спални и двор от 948 м² в к-с Делта Хил
Локация и предимства на района
Имотът е разположен в престижното селище от затворен тип на южния склон на Природен парк Витоша . Районът предлага най-чистия въздух в близост до столицата, панорамни гледки и сигурна среда. Непосредствената близост до с. Рударци осигурява достъп до минерални извори, което прави локацията перфектна за здравословен семеен живот само на 20 минути от София.
Основни параметри на имота
- Площ на парцела: 948 м² (Обширен двор с голям потенциал за ландшафтно оформление).
- Застроена площ (ЗП): 120.20 м²
- Разгърната застроена площ (РЗП): 262.85 м²
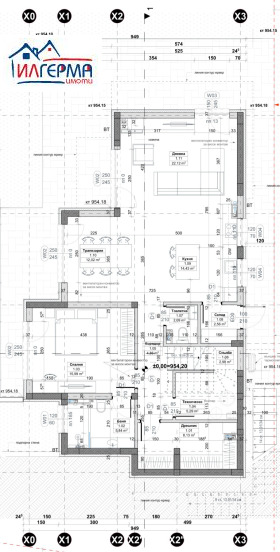
Функционално разпределение, като проектът предлага общо четири спални, разпределени за максимално удобство:
Партер (Кота 0,00 120.20 м²):
- Дневна зона: Дневна (22.12 м²), трапезария (12.02 м²) и кухня (14.43 м²) в светъл общ обем.
- Допълнителна спалня: Самостоятелна спалня на първо ниво (15.99 м²) с прилежаща баня (5.84 м²) идеална за гости или кабинет.
- Обслужващи зони: Дрешник към входа (8.13 м²), техническо помещение, склад, тоалетна и коридор.
Втори етаж (Кота +3,20 142.65 м²):
- Master Suite: Основна спалня (28.34 м²) със собствена баня (6.98 м²) и балкон.
- Още две спални: Просторни помещения, едното от които с голям индивидуален дрешник (10.89 м²).
- Допълнителни удобства: Самостоятелно перално помещение (6.05 м²), коридор, антре и бани към всяка зона.
* Техническа спецификация и енергийна ефективност:
- Конструкция: Монолитна стоманобетонна, безгредова. Осигурява чисти тавани без видими греди и гъвкавост в интериора.
- Отопление: Цялостно положено подово отопление в целия имот, подготвено за захранване от термопомпа.
- Изолация: Енергоспестяващ пакет с 10 см графитен EPS по фасадата и 10 см XPS върху покривната плоча.
- Дограма: Висок клас PVC профил с прекъснат термомост и двоен стъклопакет в цвят графит .
- Покрив: Скатен, изпълнен със стоманобетонна плоча и керемиди Bramac.
Екстериор и степен на завършеност
- Интериор: Стени на машинна шпакловка и латекс; подове, подготвени за финишни настилки (паркет/гранитогрес); блиндирана входна врата.
- Екстериор: Съвременна фасада със сива мазилка и дървесни декоративни елементи. Оформена веранда, павиран подход и каменни пътеки сред обширния двор от близо декар.
За повече информация и други предложения: инж.Владимир Владимиров - 0886191988 и 0894780129 или на нашия сайт www.ilgermaimoti.com






