Модерна самотоятелна къща в к-с Делта Хил южният склон на Витоша
Локация и предимства на района
Имотът е позициониран в единственото по рода си жилищно селище от затворен тип, разположено директно на южния склон на Природен парк Витоша . Районът съчетава здравословен планински климат и панорамни гледки с непосредствена близост до с. Рударци, известно със своите лечебни минерални извори. Локацията предлага сигурна и спокойна среда за живот с бърз достъп до столицата.
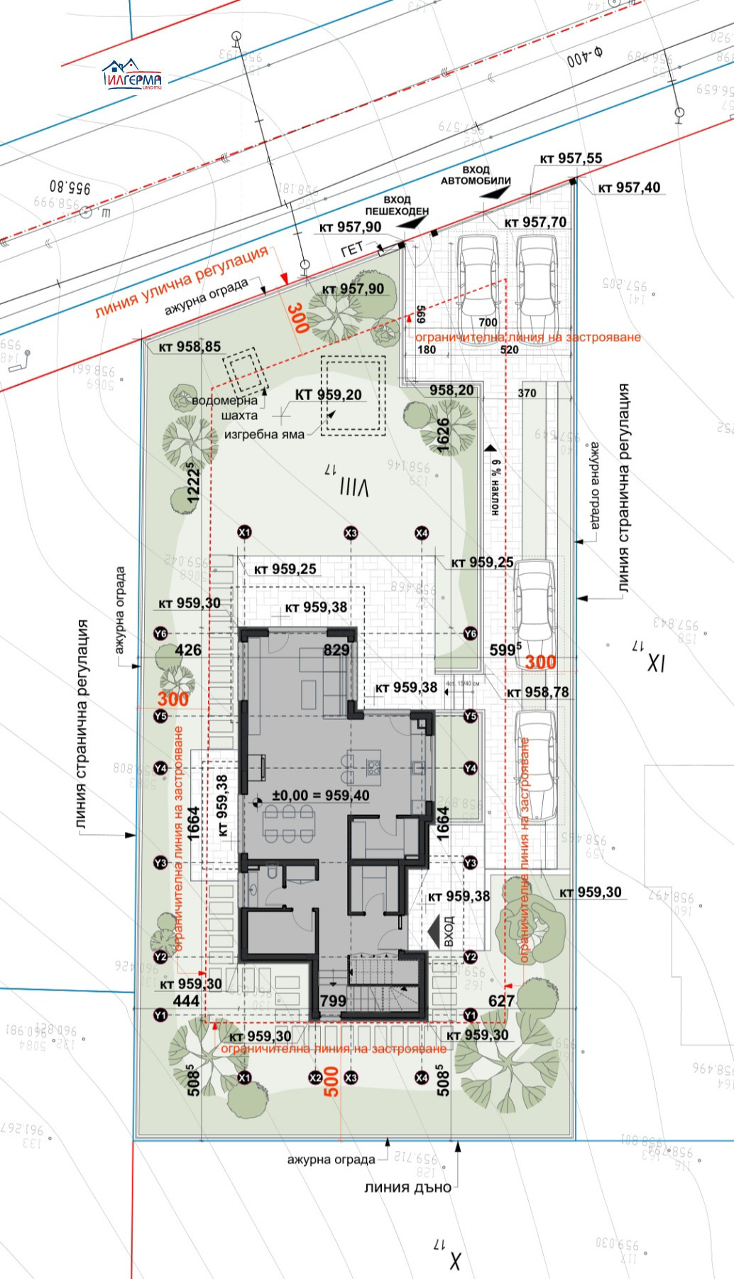
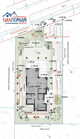
Основни параметри на имота
Площ на парцела: 694 м²
Застроена площ (ЗП): 113.57 м²
Разгърната застроена площ (РЗП): 254.44 м²
Изложение и достъп: Директна автомобилна връзка от юг.
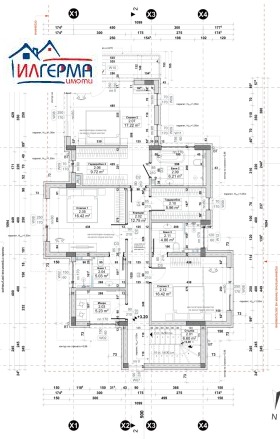
Функционално разпределение
Интериорният проект е разработен с фокус върху обема и ергономията, разделяйки жизненото пространство на две нива:
- Ниво 1 (Дневна зона): Обширно общо пространство за дневна, трапезария и кухня. Нивото включва входно антре с дрешник, техническо помещение, тоалетна и два функционални склада (единият с директен достъп от кухнята).
- Ниво 2 (Зона за сън): Проектирани са три спални, всяка със самостоятелна баня. Master bedroom разполага с индивидуален дрешник и балкон. На етажа са разположени още мокро помещение и допълнителна гардеробна.
Техническа спецификация и енергийна ефективност
Сградата се изпълнява по съвременни стандарти за устойчивост и комфорт:
Конструкция: Монолитна стоманобетонна, безгредова. Осигурява чисти тавани без стърчащи греди и свобода при интериорните решения.
Отопление: Изцяло положено подово отопление, подготвено за захранване от термопомпа.
Изолационен пакет: Висок клас енергийна ефективност с 10 см графитен EPS по фасадата и 10 см XPS върху покривната плоча.
Дограма: PVC профил с прекъснат термомост и двоен стъклопакет (цвят графит).
Покрив: Скатен (наклон 1:3), изпълнен със стоманобетонна плоча и керемиди Bramac.
Екстериор и степен на завършеност
Интериор: Стени на машинна шпакловка и латекс; подове, подготвени за финишни настилки, съобразени с подовото отопление; блиндирана входна врата.
Екстериор: Фасада със сива структурна мазилка и декоративни дървесни елементи. Оформена веранда с мразоустойчив гранитогрес, павирани подходи и пътеки от каменни плочи.
За повече информация и други предложения: инж.Владимир Владимиров - 0886191988 и 0894780129 или на нашия сайт www.ilgermaimoti.com






