ЕРА Надежда Ви представя еднофамилна двуетажна новопостроена къща с Акт 14 в с. Хераково.
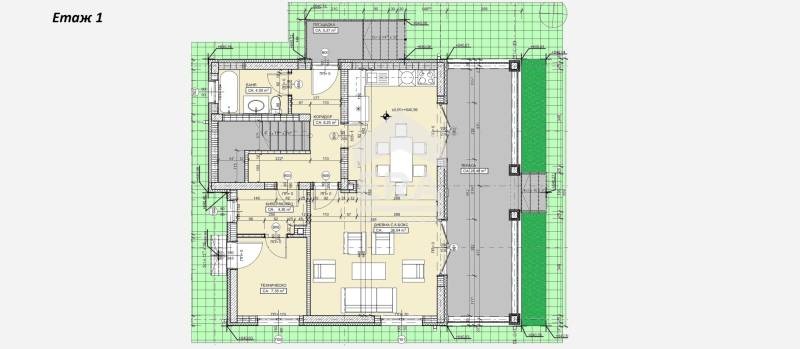
Къщата е с РЗП от 196 кв.м и се намира в парцел с площ от 480 кв.м. Разпределението, което дава удобство на цялото семейство е решено върху площ от 103 кв.м по следния начин:
На първи етаж се намира просторна и светла 36 кв.м дневна с кухненски бокс с югоизточно изложение, осигуряващо светлина през целия ден, като от нея се излиза към прекрасна веранда. На същия етаж са обособени още баня с тоалетна, котелно помещение и килер.
На втори етаж са разпределени три самостоятелни спални по 14 кв.м, отново с излаз към просторна тераса, от която се разкрива прекрасна панорамна гледка, две бани с тоалетни и дрешник.
Строителството се изпълнява с висок клас материали и безкомпрописно внимание към детайла от строител с дългогодишен опит.
-Покривна система Bramac, дограма REHAU, подово отопление в цялата къща система Tiemme, външна изолация 10 см и силикон-силикатна мазилка Weber;
-Централен водопровод, канализация изгребна яма; Къщата се предава с довършена шпакловка и замазка, трифазен ток 15 kW и защити на електроуредите, В и К инсталация на тапи;
Дворът е с площ от 380 кв.м., равен, без денивелация. Локацията на имота е много добра-намира се на 400 м. от центъра на селото.
Хераково е спокойно и добре развито населено място, разположено в красива хълмиста местност само на 20 км от София.
Разполага с поща, основно училище, църква, площадка за игра и обществен център, малки магазини, супермаркети и пазарни обекти на няколко минути с кола.
Общественият транспорт включва автобусни линии в района, които свързват Хераково с околните населени места и София.
Ако искате да изпреварите сезона в търсене на къщи и парцели, заповядайте на оглед сега!
Оферта 3304757







