ЕРА Надежда Ви представя еднофамилна новопостроена къща с Акт 16 в с. Хераково, махала Бобен .
Този комфортен имот се намира на нов асфалтов път, в среда от нови и поддържани къщи, само 750 метра до път I-8 (E80) бърз и лесен достъп до София, без квартален трафик.
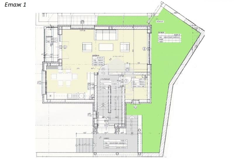
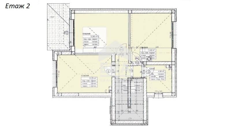
Къщата е с РЗП от 195 кв.м и се намира в парцел с площ от 420 кв.м. Разпределението, което дава удобство на цялото семейство е решено по следния начин:
Сутерен, в който са разположени гараж с водоплътен шлайфан бетон, котелно помещение, мокро помещение и склад.
На първи етаж се намира просторна, светла дневна с кухненски бокс и югоизточно изложение, осигуряващо светлина през целия ден, както и баня с тоалетна.
На втори етаж са разпределени три самостоятелни спални и баня с тоалетна.
Строителството е изпълнено с висок клас материали и безкомпрописно внимание към детайла:
-Покривна система Bramac с 30 г. гаранция, дървена конструкция, обработена срещу пожар и вредители;
-Дограма REHAU 5 камери, троен стъклопакет, топъл дистанционер и високо ефективни стъкла, механизъм WV (Фолксваген);
-Подово отопление в цялата къща система Tiemme (Италия), 10 г. гаранция, индивидуални термостати;
-Външна изолация 10 см и силикон-силикатна мазилка Weber;
-Водоплътен бетон до кота +0 и водоспиращи ленти Hydrobent;
-Трифазен ток 15 kW и защити на електроуредите, В и К инсталация на тапи;
-Централен водопровод, канализация изгребна яма;
Най-хувавото нещо в такъв извънградски имот, разбира се е дворът. Парцелът е с денивелация, а в цената влиза и вертикална планировка дворът ще бъде терасиран и подготвен за Вашите идеи.
Хераково е спокойно и добре развито населено място, разположено в красива хълмиста местност само на 20 км от София.
Разполага с поща, основно училище, църква, площадка за игра и обществен център, малки магазини, супермаркети и пазарни обекти на няколко минути с кола.
Общественият транспорт включва автобусни линии в района, които свързват Хераково с околните населени места и София.
Очакваме Ви на оглед! Тази къща се усеща най-добре на място!
Оферта 3304729







