Референтен номер: SOF-131609
'Камбаните Гардънс' е затворен жилищен комплекс от ново поколение, разположен в живописната местност 'Камбаните', на границата между София и природен парк Витоша. Комплексът е с лесен достъп до Околовръстен път и близост до ключови обекти като Бизнес Парк София, IKEA, Ring Mall и Англо-Американското училище. Съчетавайки съвременна архитектура, висококачествени материали и хармония с природата, този комплекс предлага идеалното място за Вашия нов дом.
Представяме една от прекрасните къщи:
обща площ 257,23 кв.м;
двор: 207,58 кв.м (общо с верандата: 247,33 кв.м);
парцел: 324 кв.м;
изложение: изток/ запад.
Къщата е разпределена на 3 етажа, както следва:
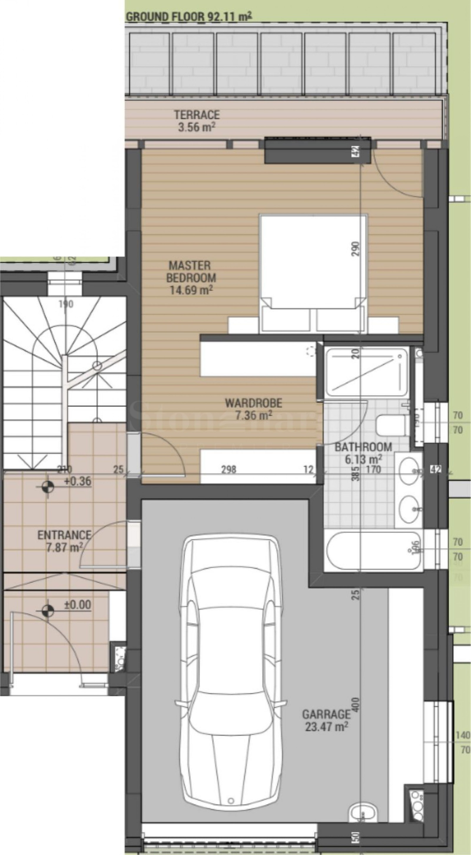
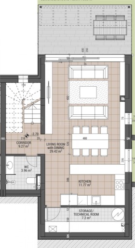
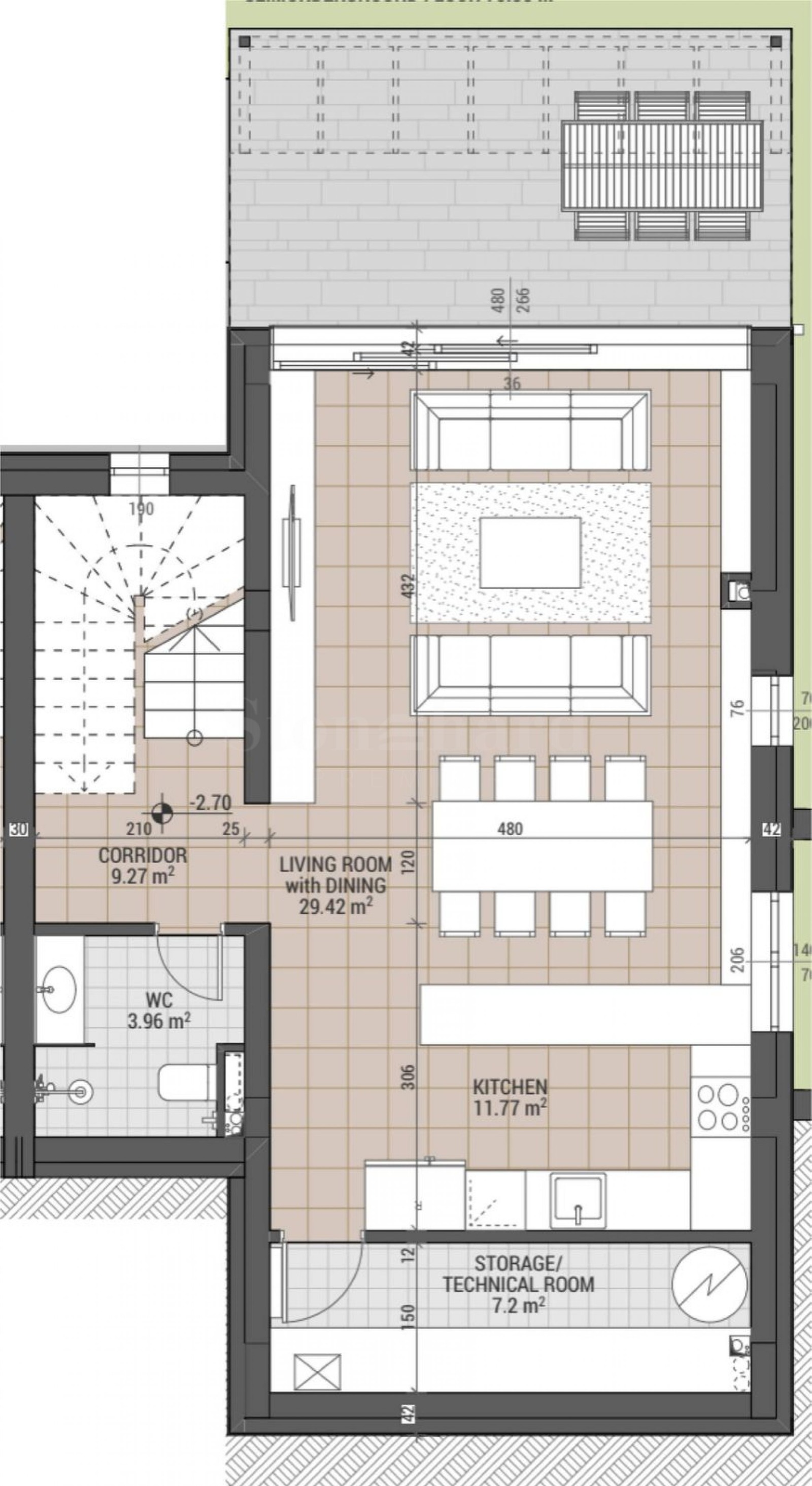
Етаж 1 (92,11 кв.м):
просторен дневен тракт с кухня;
сервизно помещение;
тоалетна;
излаз към двор и веранда.
Етаж 2 (82,56 кв.м):
2 спални;
баня с тоалетна;
мокро помещение.
Етаж 3 (82,56 кв.м):
2 спални;
баня с тоалетна.
Гараж включен в цената.
Комплексът включва:
Къщи: 80 на брой, с площи от 250 до 350 кв.м, всяка със собствен двор и веранда;
Апартаменти: 50 на брой, с площи от 75 до 200 кв.м, разположени в 4 блока.
Предимства на комплекса:
Ниска плътност на застрояване: под 20% застроена площ;
Озеленяване: над 50% зелени площи с разнообразна растителност;
Контролиран достъп и видеонаблюдение: 24/7 сигурност за спокойствието на Вашето семейство;
Професионална поддръжка: гарантирано качество и поддръжка на общите части.
Удобства в комплекса:
Детски площадки;
Алеи за бягане;
Спортни площадки;
Зони за разходка на домашни любимци.
Технически характеристики:
В строителството са използвани висококачествени материали и технологии, включително тухли Premium, алуминиева дограма Reynaers, ...
Цената на имота е 729 091 евро / 1 425 978.05 лв. без ДДС или 874 909 евро / 1 711 173.66 лв. с ДДС. Данъчен кредит може да се ползва при определени условия.
За повече информация свържете се с нас и цитирайте референтния номер на имота. Моля, кажете, че сте видeли обявата в този сайт.
Референтен номер: SOF-131609
Тел: +359 889 007 010
Моб: +359 877 777 888 (WhatsApp, Viber, SMS)
Отговорен брокер:Стоунхард ПРЕМИЪР







