Референтен номер: SOF-134003
Представяме къща в нов затворен жилищен комплекс в местност Камбаните , в.з. Малинова долина-Герена , район Панчарево. Планирано завършване: юни 2027 г. (Акт 16).
Локация
Комплексът се намира в подножието на Витоша, в зона с ниска плътност на застрояване и запазена природна среда. Осигурен е бърз достъп до Околовръстния път, от там до Бизнес парк София, Ring Mall, IKEA и престижни учебни заведения в Симеоново, Витоша и Драгалевци. Основните бизнес и търговски зони на столицата са в рамките на 15-20 минути с автомобил.
Архитектурна концепция:
Модерна архитектура с акцент върху естествените материали. Проектът е с ниска плътност на застрояване под 20%, и над 50% озеленяване. Фасадата съчетава мазилка Baumit и вентилируема облицовка с керамични плочи Laminam, осигуряващи дълготрайност и характер.
Характеристики на къщата
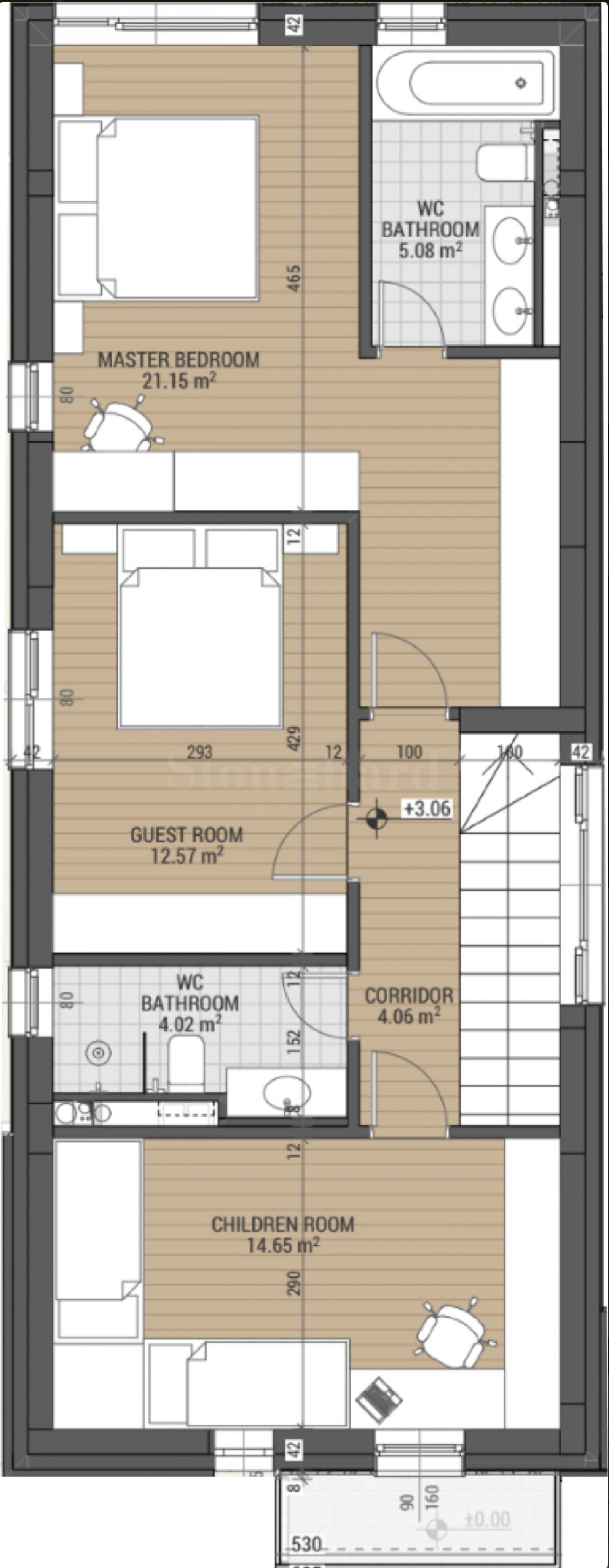
Обща разгъната застроена площ 175.95 кв.м на две нива. Парцел 240.39 кв.м, от които двор 124.28 кв.м и веранда 25.55 кв.м. Изложение изток/запад. Три спални, две бани с тоалетни, отделна тоалетна за гости. Дневният тракт е разположен на първо (градинско) ниво, с директен излаз към двора и верандата, а спалните на второ ниво.
Разпределение:
Първо (градинско) ниво 90.54 кв.м
входно антре (4.11 кв.м);
дневна с трапезария (37.75 кв.м);
кухненски бокс (16.4 кв.м);
тоалетна за гости (2.83 кв.м);
сервизно/техническо помещение (7.28 кв.м);
градински склад с външен достъп (5.1 кв.м);
веранда с излаз към двора.
Второ ниво 85.41 кв.м
мастър спалня (21.15 кв.м) с собствена баня с вана (5.08 кв.м);
детска стая (14.65 кв.м);
гостна спалня (12.57 кв.м);
обща баня с тоалетна (4.02 кв.м);
коридор.
Технически спецификации
...
Цената на имота е 511 807 евро / 1 001 007.48 лв. без ДДС или 614 168 евро / 1 201 208.98 лв. с ДДС. Данъчен кредит може да се ползва при определени условия.
За повече информация свържете се с нас и цитирайте референтния номер на имота. Моля, кажете, че сте видeли обявата в този сайт.
Референтен номер: SOF-134003
Тел: +359 889 007 010
Моб: +359 877 777 888 (WhatsApp, Viber, SMS)
Отговорен брокер:Стоунхард ПРЕМИЪР
Без комисиона от купувача







