Къща на АКТ 15 с довършителни дейности. Готова кухня, настилки - ламинат и плочки. Боядисани стени. Поставени ключове, контакти и осветителни тела. Ток и вода. Газ - присъединяване през Януари 2026. Сонда. Троен стъклопакет Декьонинк, 4 сезона. Интериорни врати скорошен монтаж. Павенца за пътеките около къщата са доставени и готови за монтаж при подходящи метеорологични условия. Първи етаж е на подово, втория на радиатори.
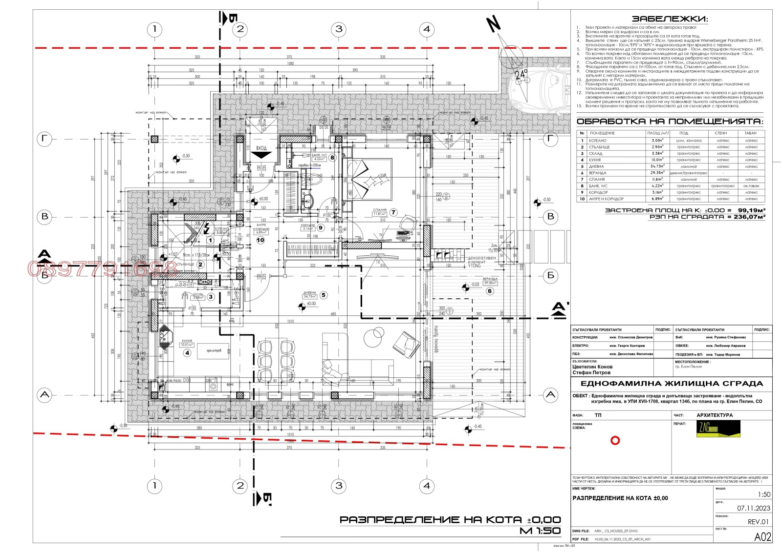
Разпределение:
Първи етаж:
Двоен Гараж с електрическа врата: 36 кв.м.
Антре - 7 кв.м.
Дневна - 35 кв.м.
Кухня - 10 кв.м.
Спалня - 12 кв.м.
Баня с тоалетна - 4 кв.м.
Склад - 3 кв.м.
Веранда - 30 кв.м.
Стълбище и подстълбищно - 7 кв.м.
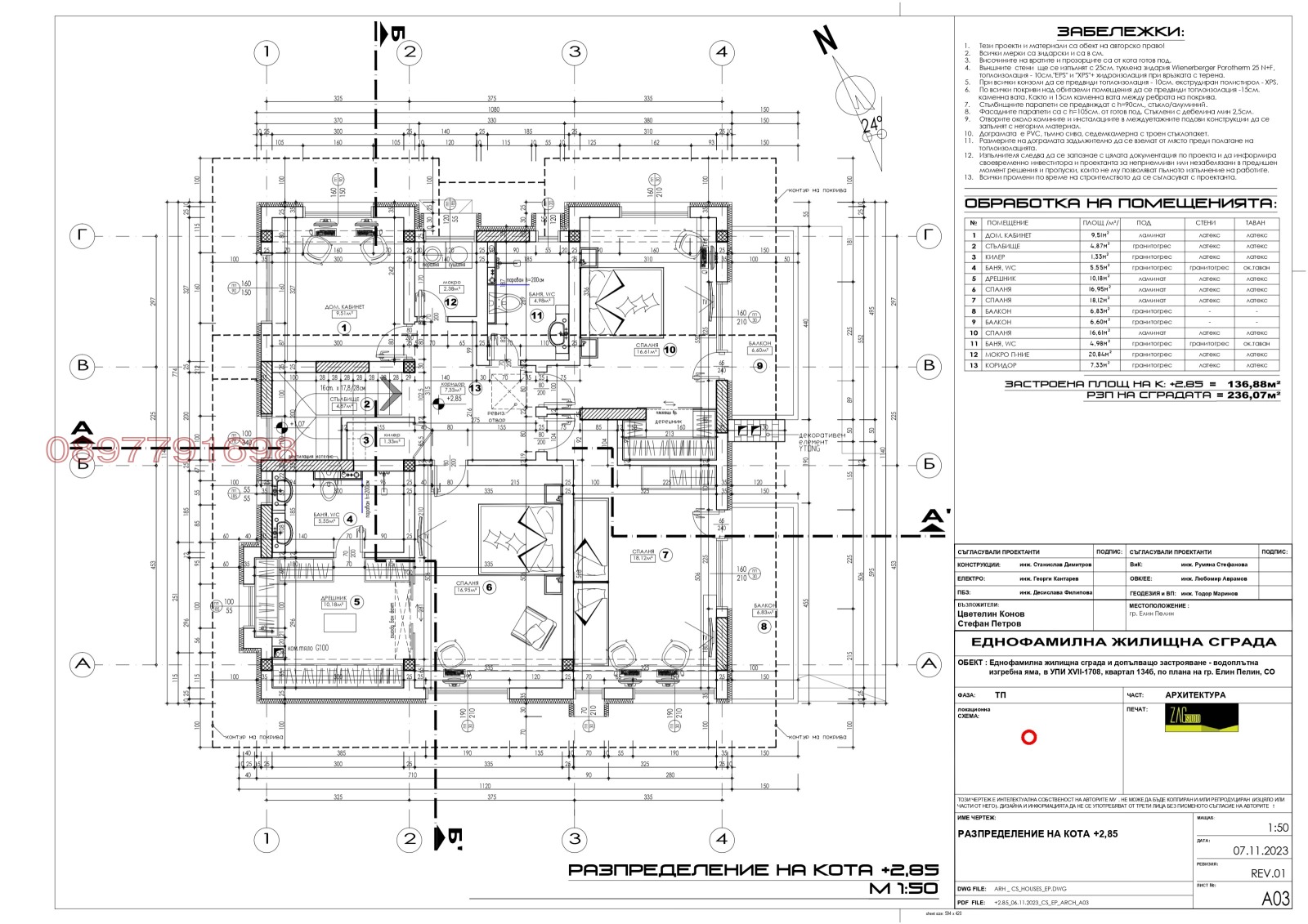
Втори етаж:
Коридор - 7 кв.м.
Кабинет - 9,5 кв.м.
Мокро - 2 кв.м.
Килер - 1,3 кв.м.
Баня - 5 кв.м.
Спалня - 17 кв.м. с балкон 8 кв.м.
Спалня - 18 кв.м. с балкон 8 кв.м.
Спалня - 17 кв.м.
Дрешник - 10 кв.м.
Баня - 5.5 кв.м.
Килер - 1.33 кв.м.
Подпокривно около 30 кв.м.







