Unique Estates има удоволствието да представи на Вашето внимание изключителен имот, разположен в една от най-предпочитаните и зелени зони край София Бистрица. Къщата впечатлява с модерен архитектурен стил, висок клас материали и перфектно южно изложение, гарантиращо светлина и уют през целия ден.
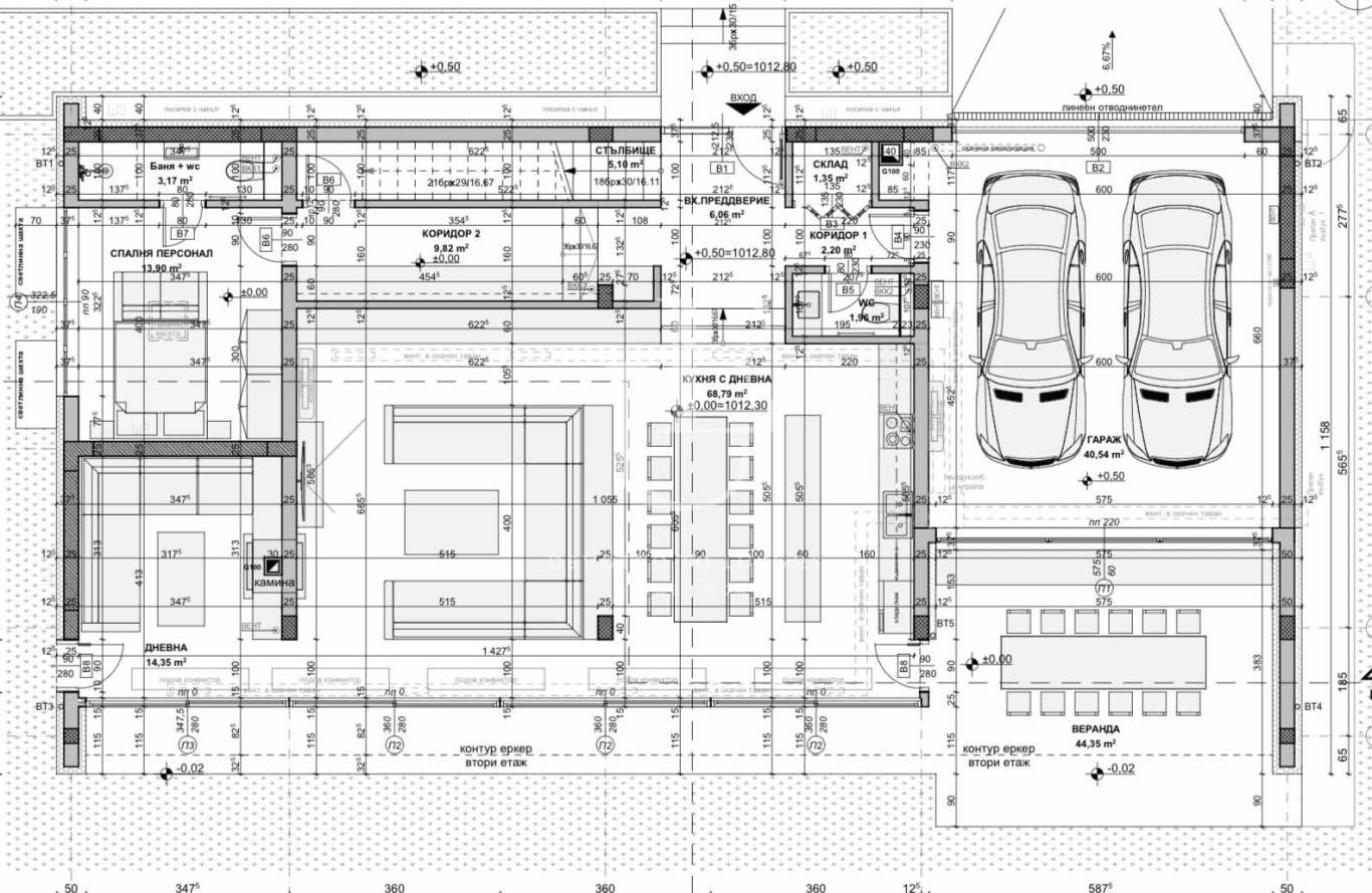
Предлага за продажба с частични довършителни работи и изградено отопление, завършена с висок клас материали, включващи: дограма - алуминиева дограма с трислоен стъклопакет и 'К' стъкло - двусезонна; дограма на зимна градина тип гилотина с ел. задвижване, фасада ArteFino, стъклени парапети и външно линейно осветление по фасадата, окабеляване за СОТ и видеонаблюдение, окачени тавани две нива с лед осветление, изградено отопление - термопомпа Въздух / Вода - Viessmann с конвектори и подово отопление - 'Rehau' във всяко помещение, изградена вентилация 'с вкарване на чист въздух' - на ет.0 и ет.1.Баните са напълно завършени с монтирани вградени моноблок марка Grohe, завършени подови настилки с италиански гранитогрес на ет.1, коридор стълбище - гранит с 'кожа' с лед осветление.
За къщата има разработен интериорен проект с опция за поръчка и изготвяне на цялостно обзавеждане.
Първо ниво с излаз на двор: фитнес и спа зона, апартамент за гости, техническо помещение, баня с тоалетна
Второ ниво с излаз на двор: главен вход откъм улицата, обширен хол с кухня и трапезария, стая за отдих (пура стая с отделна вентилация), спалня със собствена баня, тоалетна за гости, уникална тераса - зимна градина, гараж с директен вход и топла връзка.
Трето ниво - четири спални, от които: родителска спалня (50 кв.м.) със собствена баня с тоалетна (10 кв.м.), дрешник и тераса; втора спалня със собствена баня; трета и четвърта спалня, които споделят обща баня; мокро помещение. Цената е без включен ДДС. Ref. ID:28302







