Имоти БГ предлага за продажба уникална нова къща с голям самостоятелен двор (1000 кв.м.) пред Акт 16.
Къщата се намира в най-предпочитаната и живописна местност, като е изцяло южно ориентирана и с нескриваеми гледки към Витоша планина.
Изключително функционална, модерна и просторна, с височина на таваните 3,20 метра!
Разпределение:
- на първо ниво с излаз на двор: фитнес и спа зона, апартамент за гости, техническо помещение, баня с тоалетна
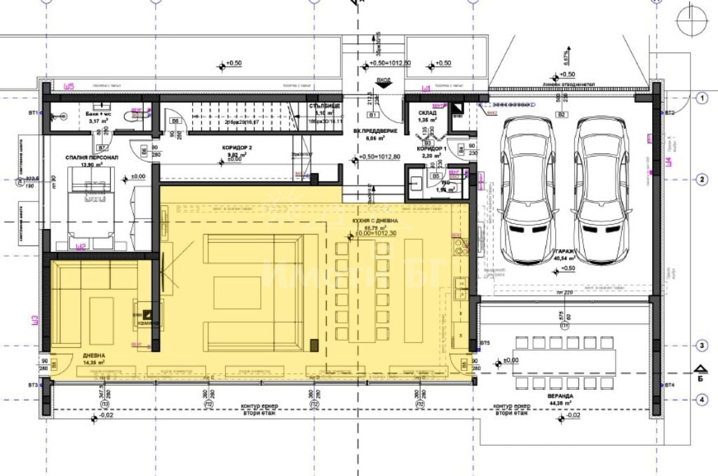
- на второ ниво с излаз на двор: главен вход откъм улицата, обширен хол с кухня и трапезария, стая за отдих, спалня със собствена баня, тоалетна за гости, уникална тераса - зимна градина, гараж с директен вход и топла връзка.
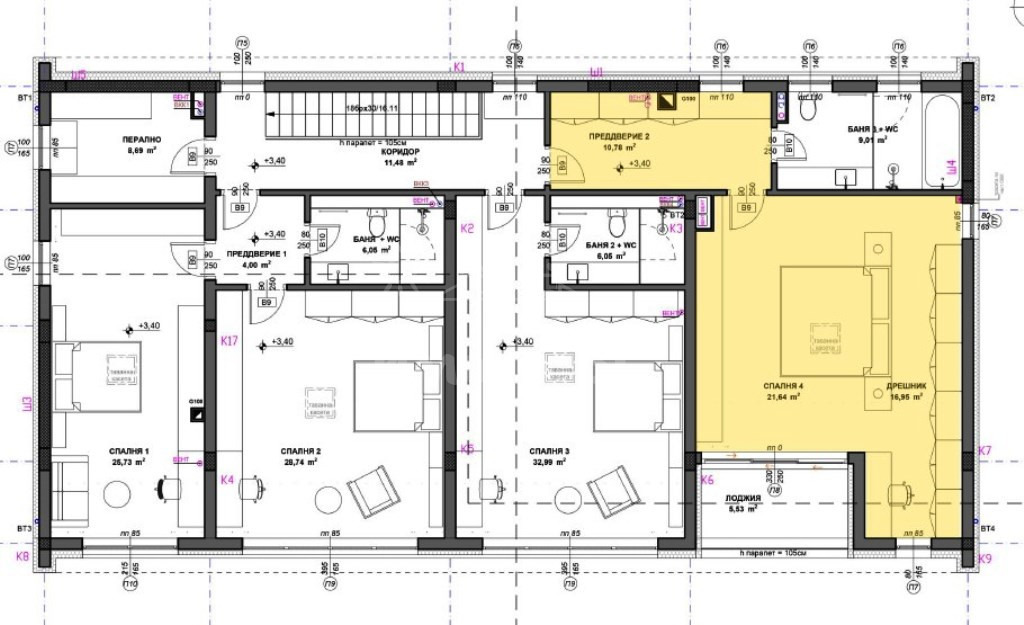
- трето ниво - четири спални, от които: родителска спалня (50 кв.м.) със собствена баня с тоалетна (10 кв.м.), дрешник и тераса; втора спалня със собствена баня; трета и четвърта спалня, които споделят обща баня; на етажа има и мокро помещение;
Къщата се предлага за продажба с частични довършителни работи и изградено отопление, завършена с висок клас материали, включващи:
Дограма - алуминиева дограма - трислоен стъклопакет - К стъкло, 2 сезона
Дограма на веранда - тип гилотина , подвижна с ел. задвижване.
Топлоизолация - 15 см
Покрив - 15 см. топлоизолация XPS с 2 пласта хидроизолация на 'Sika', и обшивка с ламарина Шлебах
Стъклени парапети по фасада
Външно линейно осветление по фасада
Фасада система ArteFINO - AFS C12
Окабеляване за СОТ и Видеонаблюдение
Окачени тавани две нива с лед осветление
Изградено отопление - Термопомпа Въздух / Вода - Viessmann с конвектори и подово отопление - 'Rehau' във всяко помещение
Изградена вентилация 'с вкарване на чист въздух' - на ет.0 и ет.1
Бани- напълно завършени с монтирани вградени моноблок марка Grohe и Vidima Ideal
Завършени подови настилки с италиански гранитогрес на ет.1
Коридор стълбище - гранит с 'кожа' с лед осветление
За къщата има разработен интериорен проект с опция за поръчка и изготвяне на цялостно обзавеждане.
ID в агенцията .616665.
За контакти и повече информация www.imotibg.com



