Открийте вашия дом в сърцето на природата Комплекс от 6 редови къщи в Бистрица пред АКТ 16
Forton Homes представя уютен дом сред величествени планини и зеленина, където всяка сутрин започва с чист планински въздух и панорамни гледки.
Предлагаме къща изградена на 3 нива с площ от 196.10 кв.м. и дворно простанство от 365.68 кв.м.
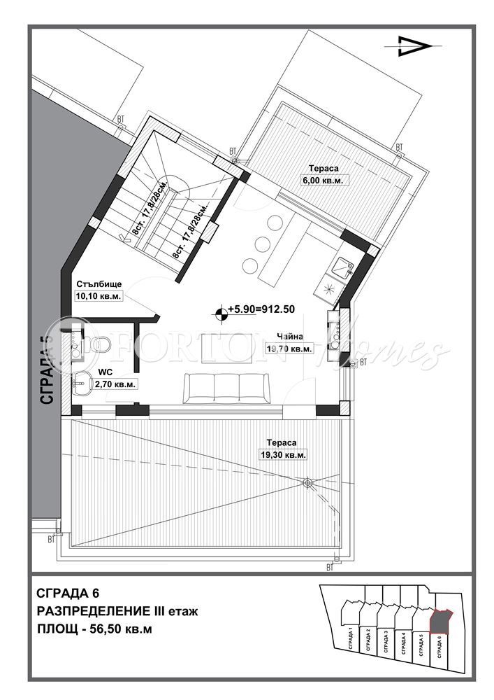
Имотът е със следното разпределение:
Ниво 1 - антре, дневна, трапезария, кухненски бокс, тоалетна, складово помещение, веранда ,две паркоместа
Ниво 2 - антре, три спални,две бани и тераса
Ниво 3 - антре, кабинет/ стая за отдих, тоалетна и тераса
Имотът се предлага със завършени настилки, готови бани, интериорни врати, термопомпа и конвектори за охлаждане включени в ценяата. Изградено е и подово отопление навсякъде.
Къщите са изградени с премиум материали и внимание към всеки детайл, предлагащи максимален комфорт и уют.
Само на 15 минути от центъра на града;
В подножието на планината Витоша;
Красиви панорамни гледки;
Комфортни разределения;
Самостоятелни дворни простанства;
Без такса поддръжка
Изберете вашия дом и открийте перфектния баланс между природа и удобства.
Водещ консултант: Мира Зашева
+359882344673
[email protected]







