ДИРЕКТНО ОТ ИНВЕСТИТОР! 3 ЕТАЖА С ДЖАКУЗИ! ПОДОВО ОТОПЛЕНИЕ!
'МАНИЛА ХИЛС' е жилищен комплекс от затворен тип с площ от близо 2 декара и се състои от общо 6 еднофамилни жилищни сгради с РЗП около 290-320кв.м. На територията на комплекса ще бъде разположен и търговски обект.
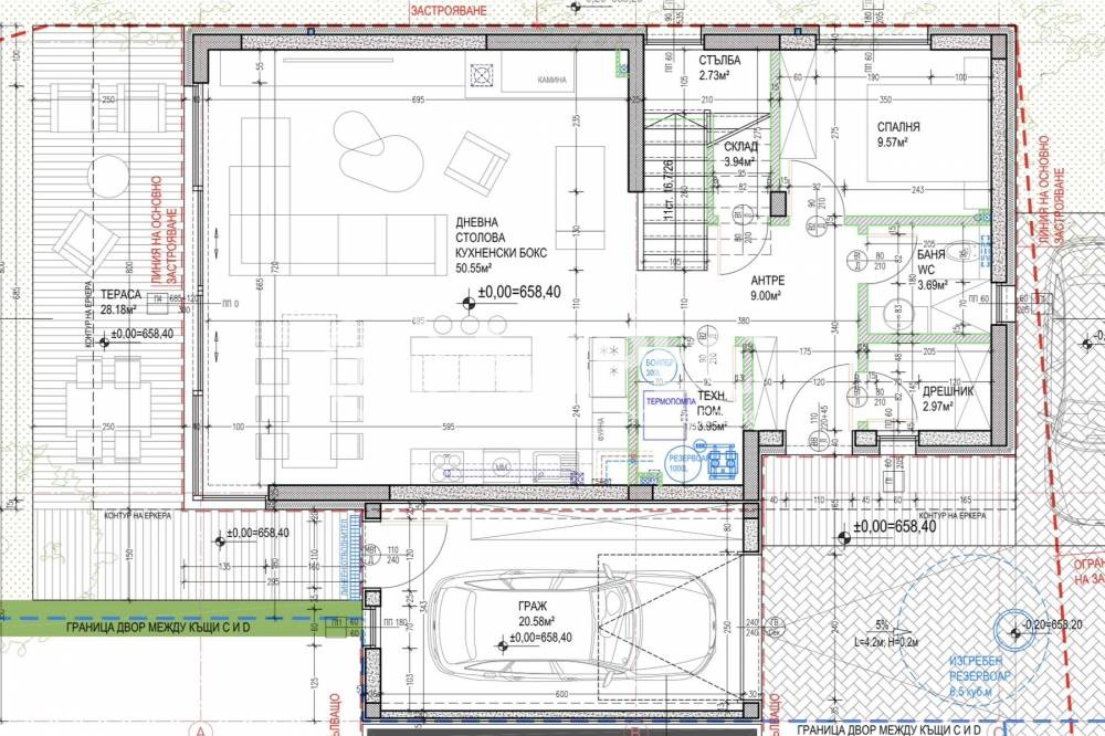
В продажба са 3 еднофамилни жилищни сгради с РЗП от 300кв.м. и самостоятелни гаражи.
Всяка от къщите ще бъде с подово отопление и външно джакузи!
Къща А ЗП етаж 1-118,43кв.м, ЗП етаж 2-118,72кв.м., подпокривно -60кв.м.
Къща B ЗП етаж 1-121,06кв.м., ЗП етаж 2- 118,72кв.м., подпокривно-60кв.м
Къща C ЗП етаж 1-129,32кв.м., ЗП етаж 2- 117,20кв.м., подпокривно-60кв.м.
Къща D ЗП етаж 1- 129,32кв.м., ЗП етаж 2-117,20кв.м, подпокривно-60кв.м.
Къща Е ЗП етаж 1-129,32кв.м., ЗП етаж 2-117,20кв.м., подпокривно- 60кв.м.
Монолитна конструкция със стоманобетонови колони, греди и плочи. Външните стени са от тухлена зидария с керамични тухли Porotherm.
Покривната конструкция е тип едноскатен или двускатен покрив. Отводняването на покрива се изпълнява от улуци и водосточни тръби.
Системите за топло, хидроизолация и дограма отговарят на стандарти за енергоспестяваща къща. Подово покритие циментова замазка. Стени и тавани мазилка.
Входни врати блиндирани.
Положено подово отопление. Отопление термопомпа.
Гараж с ролетна врата с дистанционно управление.Изградена поливна система.
Комплекс от затворен тип - в ограден двор с контрол на достъпа, отлична визия и качество на материали и системи, собствен двор-градина, благоустроен и озеленен двор по ландшафтен проект.
Разсрочено плащане.
Обади се сега и цитирай този код 677001







