Translations in other languages:
All real estate ads published on imot.bg have been translated into English and published on the partner site
Получихте нова обява по филтър





Промяна на цена на наблюдавана обява


стара цена
нова цена
imot.bg – обяви за продажби и наеми на имоти
Сайт за имоти №1
Translations in other languages:
All real estate ads published on imot.bg have been translated into English and published on the partner site
ДОБАВИ ОБЯВА Редакция на обява
Начало Публикуване Търсене Нови сгради Агенции Новини Кредити Моят имот
Продава КЪЩА
град София, Симеоново
499 990 €
977 895.44 лв.

(2 618 €, 5 120.36 лв./m2)
Цената е с включено ДДС
История на цената
Коригирана в 13:25 на 3 декември, 2025 год.
Обявата е посетена 1869 пъти.
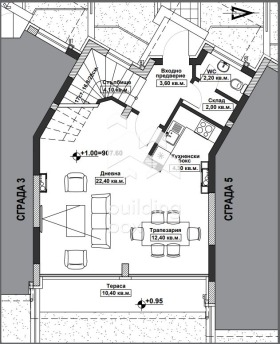
Площ:
191 m2
Двор:
196 m2
Етаж:
0 от 3
Строителство:
Тухла, 2025 г.

Описание на имота:


ДИРЕКТНО ОТ ИНВЕСТИТОР!
Пред АКТ 16!

?Билдинг Бокс има удоволствието да Ви представи ново предложение - дом заобиколен от природа, спокойствие и простор.

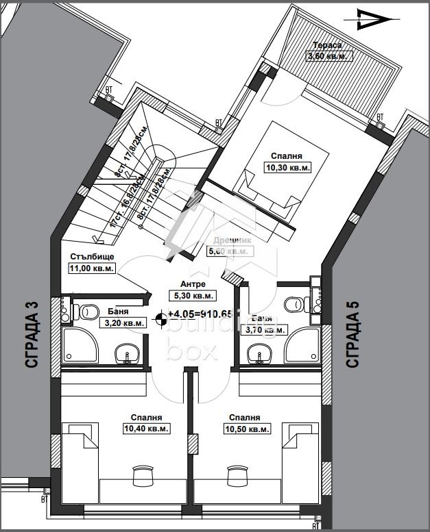
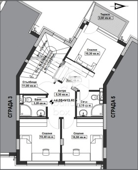
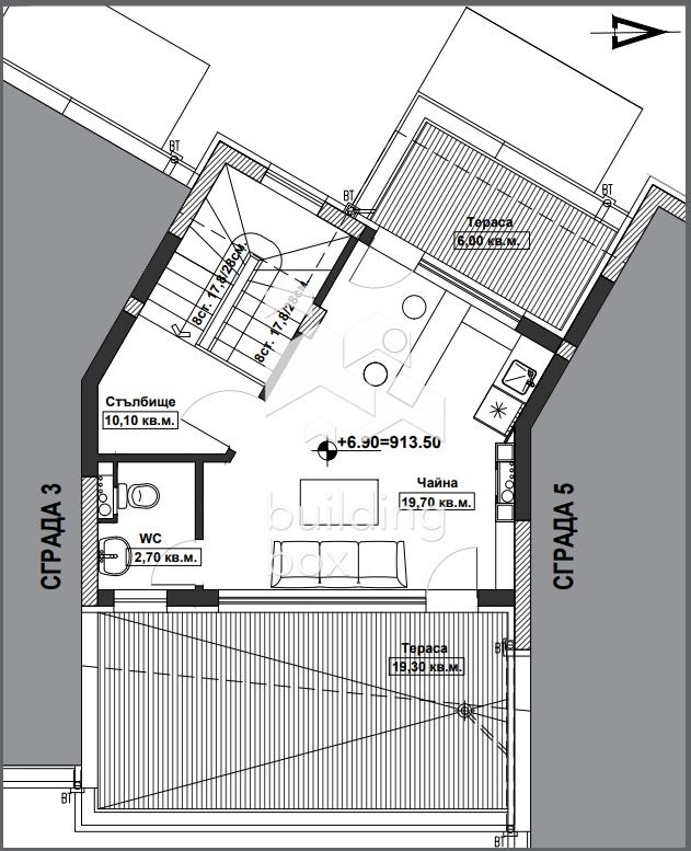
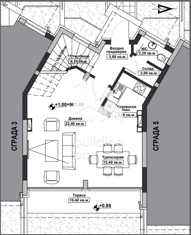
Къща със самостоятелен двор от 196 кв.м и с площ от 190,90 кв.м. Първото ниво се състои от: антре, склад, голяма дневна с трапезария и кухненски бокс, тоалетна и прекрасна веранда. Второто ниво: три самостоятелни спални, към една от които има дрешник и тераса, и две бани с тоалетни. На третото ниво: open space помещение с баня и тоалетна, което е подходящо за офис или четвърта спалня. Пред къщата има обособени две паркоместа.

Комплекс 'ОСТА Хоум' се състои от общо шест къщи, като всички са с по три етажа. Основното изложение на къщите е изток-запад.

В момента къщите са на етап пред Акт 15, като за изпълнението им са използвани висок клас материали. Във всяка от къщите има изградено подово отопление, а спрямо предпочитанията на клиента, ще може да се отоплява на ток или пелети.

Акт 16 се очаква в средата на 2025г.

В комплекса ще бъде монтирана пречиствателна станция.

Билдинг Бокс предоставя безплатна консултация и кредитно съдействие при финансиране на избрания от Вас имот.
Оферта 8781
Особености
Тухла
В затворен комплекс
С паркинг
За контакт:
0879900994
Брокер:
БИЛДИНГ БОКС София Юг
0879 900 994
Офис: гр. София
Още оферти от брокера: Продава | Дава под наем | Купува | Наема
Агенция:
БИЛДИНГ БОКС
0877734412
БИЛДИНГ БОКС logo
Медал за прослужено време
В imot.bg от 2013 г.
buildingbox.imot.bg
Адрес:
област София, гр. София, София ЕИК207674103
ИЗПРАТИ ЗАПИТВАНЕ
ИЗПРАТИ ЗАПИТВАНЕТО

Продава КЪЩА
град София, Симеоново
Обява: 1j176182346917499

499 990 €
977 895.44 лв.
История на цената
(2 618 €, 5 120.36 лв./m2)

Цената е с включено ДДС
ЗАПАЗИ ОБЯВАТА

Местоположение: град София, Симеоново

Виж още имоти от София или още Къщи в София
Допълнителни данни за имотите в района и сравнение с други райони: Търсене в АРХИВ 2013 - 2025 г.











Добави/редактирай
вид имот и район
*Средните цени са определени чрез медиана стойност.
Въпроси и предложения към imot.bg
КОНТАКТИ | SMS КОДОВЕ | ПОМОЩ | ОБЩИ УСЛОВИЯ | РЕКЛАМА | ЗАЩИТА НА ЛИЧНИТЕ ДАННИ | КАРТА НА САЙТА |
Резон Медия | Имоти | Автомобили | Работа | Новини | Обяви | Преводи и легализация 2002-2025 ® Copyright imot.bg
© imot.bg ползва и препоръчва хостинг услугите на Bulinfo.net
Следвайте ни в: