Намира се в с. Доброславци, което е подходящо място за хора, които търсят спокойствие и близост до природата, но същевременно искат да имат лесен достъп до столицата.
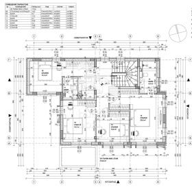
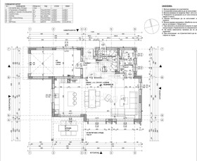
БИЛДИНГ БОКС има удоволствието да Ви представи една новострояща се еднофамилна къща от 226,4 квадратни метра РЗП на 2 етажа пред акт 16.
Продават се две къщи. Едната е вече с готова фасада.
Тази от обявата, в момента е на етап поставяне на изолация и съвсем скоро ще е в същия вид като другата къща.
Къщата има самостоятелен урегулиран поземлен имот от 600 кв.м. В цената е включен проект за цялостно озеленяване на двора.
Къщата е с изпълнена инсталация за подово отопление, захранващо се с термо помпа, което е една от най-енергоспестяващите отоплителни системи. Степента на завършеност ще бъде на шпакловка и замазка.
Разпределението е, както следва:
Първи етаж: антре, просторен хол, трапезария и кухня с директен излаз към двора, склад / техническо помещение, баня с тоалетна.
Втори етаж: четири спални, от които две от тях са със собствени бани и отделна баня.
Гараж: За 1 автомобил и паркомясто пред него.
Предимства на района:
-Чист въздух:
далеч от градския шум, район с чист въздух и здравословна среда за живеене.
-Транспортна достъпност:
Селото е достъпно с автомобил, което осигурява бърза връзка със София.
Има редовен градски транспорт, което улеснява придвижването без личен автомобил.
-Основни удобства:
В селото има магазини, което е важно за ежедневните нужди.
Наличието на заведения също е плюс за тези, които търсят места за хранене и отдих.
-Близост до София:
Разположението на около 20 минути от София позволява бърз достъп до столицата, което е важно за работа, образование и развлечения.
БИЛДИНГ БОКС предоставя безплатна консултация и кредитно съдействие при финансиране на избрания от Вас имот.
Оферта 19822
Виж всички обяви в buildingbox.bazar.bg или тук







