JJ Corporation предлага на Вашето внимание имот, разположен на главната улица на с. Лозен едно от най-предпочитаните и динамично развиващи се села в близост до София. Районът се отличава с отлична инфраструктура, чист въздух, спокойствие и удобен достъп до града чрез бул. Цариградско шосе и Околовръстен път. В близост има училище, детска градина, магазини, спирки на градски транспорт и модерни жилищни комплекси, което прави имота подходящ както за живеене, така и за бизнес.
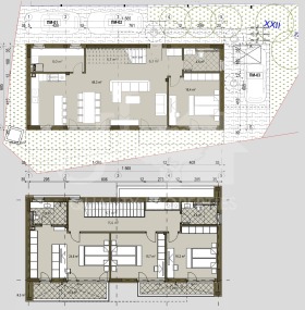
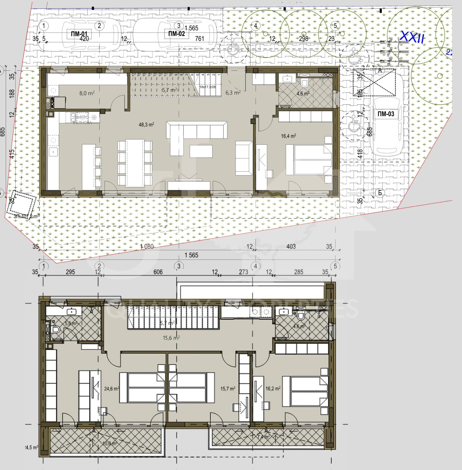
Имотът представлява нова двуетажна сграда със статут на офис, разположена в урегулиран поземлен имот с площ 268 кв.м.Сградата е с РЗП 231 кв.м и Акт 14, като ще бъде напълно завършена и въведена в експлоатация (Акт 16) от настоящия собственик. Сградата е проектирана с функционално разпределение и модерна визия, като позволява гъвкаво използване за жилищни или офис нужди.Къщата разполага с ток, вода, пречиствателна станция, но е предвидено и изграждане на канализация.В двора са обособени 2+1 паркоместа.
Отличен избор за хора, които търсят модерен дом близо до София или представителен офис в спокойна и зелена среда.
Работим с колеги по всички наши оферти! Агенцията ни предлага преференциални условия за отпускане на ипотечен кредит и пълно юридическо съдействие. Водещ брокер: Мартин Янакиев: 0888 65 81 91. Оферта номер: 611







