Директно от строителя - без комисионна за купувача!
Нова, нискоенергийна жилищна сграда в собствен УПИ в центъра на Горни Лозен!
Офертата включва новопостроена жилищна сграда с РЗП от 180 кв. м и гараж за два автомобила с площ от 36 кв. м.
Сградата се състои от:
- на първо ниво - дневна, баня с тоалетна, перално помещение, техническо помещение и веранда.
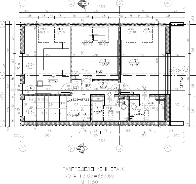
- на второ ниво - три спални и две бани.
Парцела е с площ от 600 м2. Сградата се намира в центъра на Горни Лозен, непосредствено до градски транспорт, като са осигурени всички комуникации. Парцела е слънчев и разполага с прекрасна панорама към София и Софийското поле.
Сградата е модерна, изпълнена с първокласни материали, като офертата включва изграждане на гараж и ограда, озеленен двор, автоматична поливна система, градинско осветление, автоматична портална врата и други.
Към момента сградата е пред Акт 15, като пълното завършване се очаква до края на 2025.
Гъвкава схема на плащане съобразена с етапите на строителство.
За повече информация и огледи, не се колебайте да се свържете с нас.
За още предложения за нови, еднофамилни къщи в района на София следете официалният ни сайт msv(dot)bg.
New, low-energy residential building on an own plot in the center of Lozen, Sofia!
The price includes the newly-built house with a total built area of 180 sq. m, together with a double garage of 36 sq. m
The home consists of:
- on the ground floor living room with kitchen and dining area, bathroom and toilet, washing compartment, technical room, and a veranda.
- on the first floor three bedrooms and two bathrooms with toilet.
The plot measures 600 square meters. The property is situated in the center of Lozen in close proximity to public transport, with all communications and infrastructure readily available. The plot is open, sunny, with appealing view overlooking the city.
The building is modern, flawlessly constructed, and the offer includes the completion of the garage and fence, landscaping and planting, automatic irrigation, garden lighting, an automatic garage door, and more.
Currently, the construction nears completion (act 15) and is expected to fully complete by the end of 2025.
We can offer a flexible payment scheme corresponding to construction progress.
For further details, please do not hesitate to contact us.
For more offers for newly-built houses in the Sofia area, please refer to our website - msv(dot)bg

