Модерни къщи с високо качество на строителство
с. Големо Бучино, София
МОДЕРЕН ЖИВОТ В ЗЕЛЕНА СРЕДА
Forest Residence е бутиков проект от три самостоятелни къщи, разположени в отделни урегулирани поземлени имоти (УПИ) сред зеленина и спокойствие, само на 12 минути от Околовръстния път на София.
Всяка къща е проектирана с мисъл за комфорт, функционалност и енергийна ефективност, осигурявайки идеален баланс между природата и града.
ЛОКАЦИЯ
с. Големо Бучино, община Перник
23 км от центъра на София
Асфалтов достъп и нова инфраструктура
Само 12 минути от бъдеща метростанция на линия 4
Панорамна гледка към Витоша
Спокойна зона с нискоетажно строителство
ПРОЕКТЪТ
3 самостоятелни къщи
Всяка с РЗП: 243 м²
Площ на парцелите: 644 м² / 655 м² / 837 м²
Акт 16: септември 2026 г.
Степен на завършеност: възможност за предаване на шпакловка и замазка , както и опция за довършване до ключ
РАЗПРЕДЕЛЕНИЕ
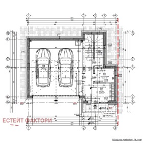
Ниво -1 (Гараж и обслужващи помещения 78.2 м²)
Двоен гараж 41 м²
Антре
Техническо помещение
Склад
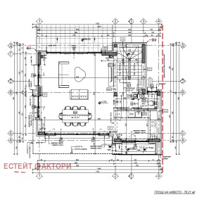
Ниво 0 (Дневна зона 78.2 м²)
Просторна дневна с кухня и трапезария 49 м²
Излаз към двор и веранда
Тоалетна за гости
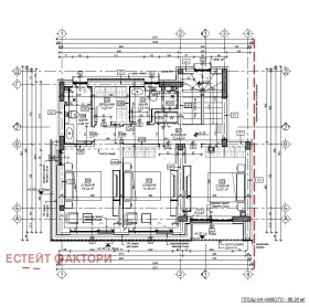
Ниво +1 (Спални 86.3 м²)
Родителска спалня с баня и дрешник
Две допълнителни спални
Втора баня и перално помещение
ЦЕНИ И СХЕМА НА ПЛАЩАНЕ
Цена на всяка къща: 360 000 EUR
Промоционална цена за къщата с най-големия двор (837 м²) 360 000 EUR
Схема на плащане:
20% при подписване на предварителен договор
80% при издаване на Акт 16
КОНСТРУКЦИЯ И МАТЕРИАЛИ
Монолитна стоманобетонна конструкция
Хидроизолация: Penetron
Зидария: Wienerberger
Топлоизолация: EPS + каменна вата
Фасада: мазилка и фиброцимент с дървесен ефект
Покрив: плосък, топлоизолиран, хидроизолация Isomat
Дограма: PVC, троен стъклопакет
Входни врати: блиндирани с остъкление
ПРЕДИМСТВА
✅ Самостоятелни имоти с отделни дворове
✅ Панорамна гледка и южно изложение
✅ Висок клас материали и модерна архитектура
✅ Асфалтов достъп и паркинг зона пред гаражите
✅ Уединение и природа, само на 12 минути от София
✅ Готови за въвеждане в експлоатация през септември 2026 г.







