Модерна еднофамилна къща с двор в Нови хан пред Акт 14
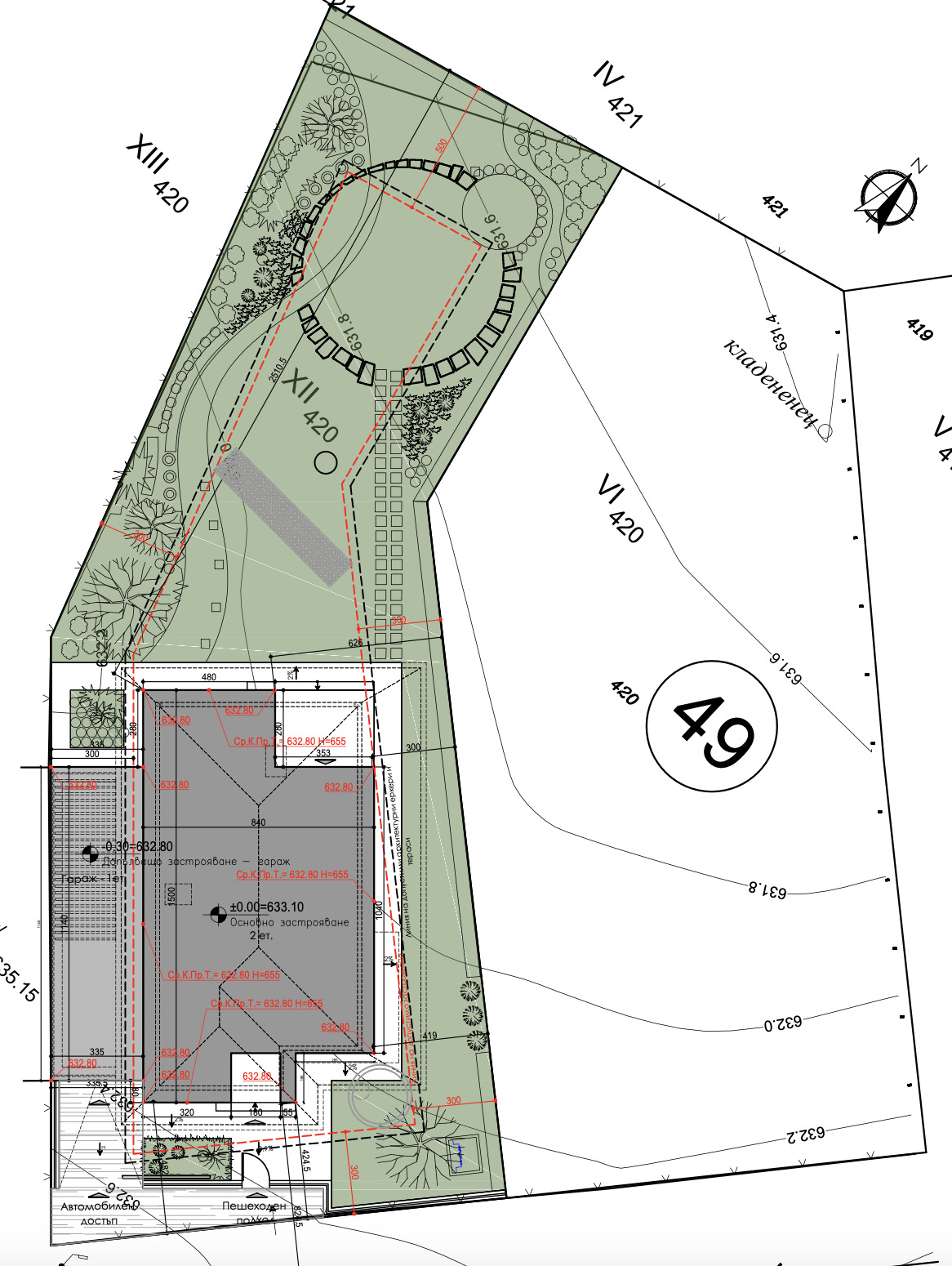
Агенция ГОЛДЕН МЕЙН ЕСТЕЙТС предлага ексклузивно за продажба новопостроена еднофамилна къща с РЗП 310 кв.м и двор 585 кв.м, разположена в спокойна жилищна зона в центъра на с. Нови хан, с бърз достъп до АМ Тракия и гр. София.
Очакван Акт 14 до 1 месец.
Конструкция и материали:
Стоманобетонна конструкция
Висококачествена топлоизолация
Стени с турбозолна мазилка
PVC дограма с троен стъклопакет
Възможност за подово отопление
Инсталации: ток, вода, интернет, газ
Възможност за термопомпа
РАЗПРЕДЕЛЕНИЕ:
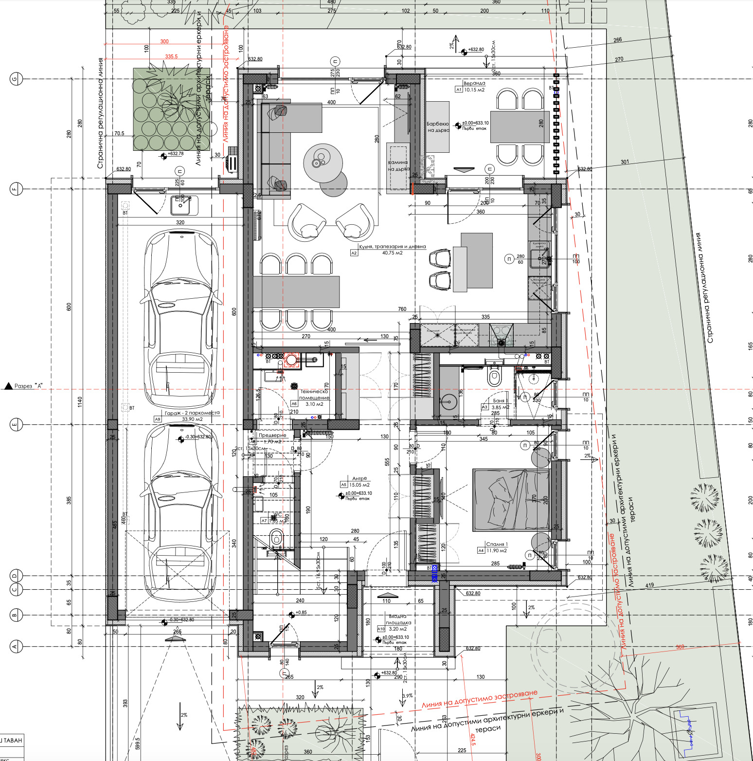
Първи етаж 146 кв.м:
Дневна с кухненски бокс и трапезария 40.75 кв.м, с излаз към покрита тераса с външна камина 10.15 кв.м
Спалня 11.90 кв.м със самостоятелна баня и тоалетна 3.85 кв.м
Отделна тоалетна 1.65 кв.м
Антре 15.05 кв.м и преддверие 1.70 кв.м
Котелно/техническо помещение 3.30 кв.м
Двоен гараж с топла връзка към къщата 33.90 кв.м
Вътрешна камина в дневната зона
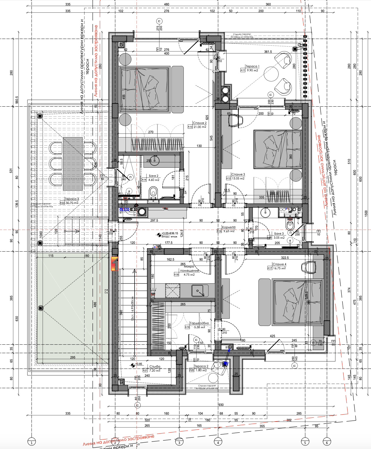
Втори етаж 164 кв.м:
Родителска спалня 21 кв.м със собствена баня 4.60 кв.м и тераса 9.90 кв.м
Две спални 13.05 кв.м и 16.75 кв.м с гардеробно 5.40 кв.м
Баня с тоалетна 3.05 кв.м
Отделно мокро помещение 4.75 кв.м
Две тераси 1.80 кв.м и 9.90 кв.м
Голяма тераса над гаража 30.70 кв.м
ПРЕДИМСТВА НА ИМОТА:
Ексклузивна оферта без комисионна от купувача
Просторно и модерно жилище с функционално разпределение
Възможност за довършителни работи по избор на клиента
Двор с потенциал за басейн, градина или детска площадка
Отлична локация само на 20 минути от София
Възможност за изграждане на идентична къща в съседния парцел
Цена: 465 000 без ДДС
Телефон: 0877 303 353
Агенция: ГОЛДЕН МЕЙН ЕСТЕЙТС
Виж всички обяви в goldenmane.bazar.bg или тук




