Нова двуетажна къща с двор без такса поддръжка до Бургас
БЕЗ ТАКСА ПОДДРЪЖКА!
ДОПЪЛНИТЕЛНО САМОСТОЯТЕЛНО ПОМЕЩЕНИЕ С ОТДЕЛЕН ВХОД! ДО БУРГАС! ГОЛЯМ ДВОР! ПАНОРАМА! ПРИРОДА И ПРОСТОР! ПАРКОМЯСТО! ВЪЗМОЖНОСТ ЗА ОБОСОБЯВАНЕ НА ЧЕТВЪРТА СПАЛНЯ! КАНАЛИЗАЦИЯ! ГОЛЯМА ВЕРАНДА!
Ако търсите спокойствие, природа и простор, но не искате да се отказвате от близостта до града това предложение е за вас.
Петракиеви недвижими имоти представя нова двуетажна къща, без такса поддръжка само на 16 км от Бургас, в живописното и бързоразвиващо се село Черни връх. Имотът се намира в крайна част на селото, в много тиха и уединена зона, с панорамна гледка, чист въздух, много светлина, простор и зеленина наоколо. Редовен градски транспорт и спирка в близост. Идеално място за хора, които ценят природата, уюта и уединението. Това е проект с вече изградени 3 къщи, от които две се продават.
Двуетажната къща е пред Акт 16, с РЗП 280 кв.м и със собствен двор от 986 кв.м.
Имотът се отличава с няколко ключови предимства, които го правят особено атрактивен както за целогодишно живеене, така и за вила или инвестиция.
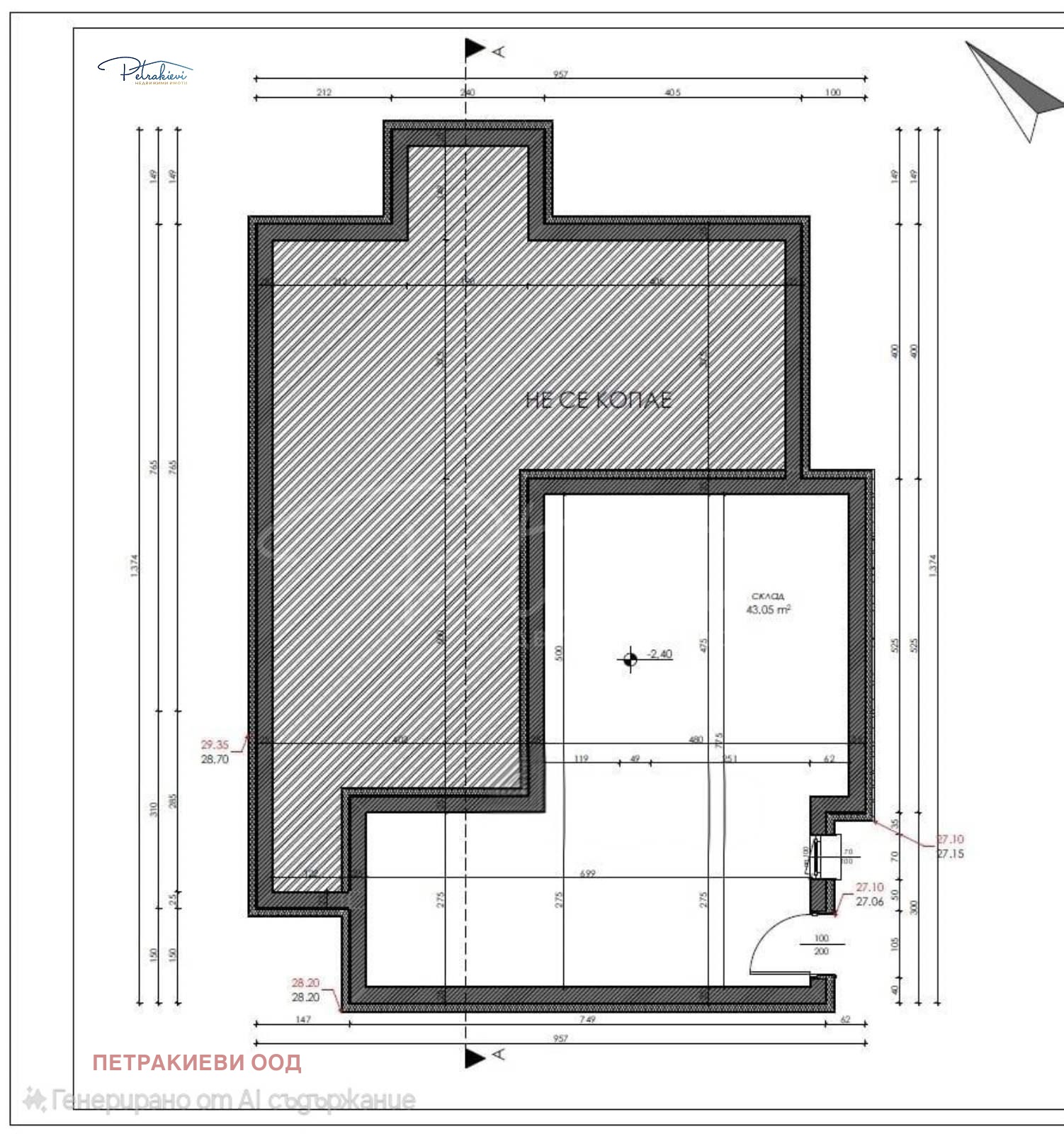
Най голямото преимущество на имота е наличието на самостоятелно, наземно помещение с площ от 50 кв.м, разполагащо със собствен санитарен възел. Това пространство предлага гъвкави възможности за ползване може да бъде обособено като механа, работилница, склад или дори напълно самостоятелно жилище с отделен вход.
Просторна южна веранда с прекрасна панорамна гледка, идеална за отдих, семейни събирания или за сутрешно кафе сред тишината на природата.
Голям двор с площ от 986 кв.м, предлагащ възможност за озеленяване, овощна градина, барбекю зона или дори изграждане на басейн.
Къщата е с функционално разпределение, подходяща за семейство и е ситуирана в район с добра инфраструктура, целогодишен достъп и спокойна атмосфера.
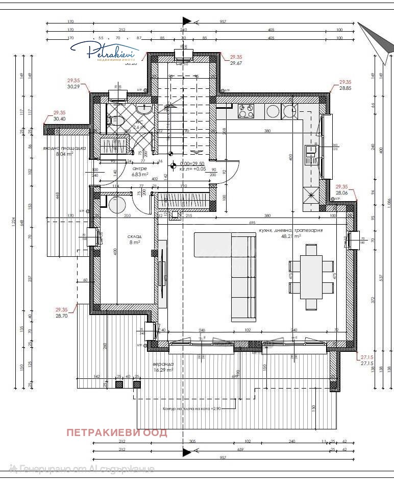
Разпределение на имота
Първи етаж (124 кв.м): входно антре, просторна дневна, заедно с кухненски ъгъл и трапезария, с излаз към голяма южна веранда, кабинет/склад, баня с WC, стълбище към горно ниво.
На втория етаж (106 кв.м): 3 спални, като към една има самостоятелна баня с WC, 3 тераси, 2 бани с WC.
Самостоятелно наземно помещение със санитарен възел и отделен вход (50 кв.м).
Имотът се издава по БДС с ограда, портал и парапети на верандите, с отделни партиди за ток и вода. Разполага с плосък покрив идеален за соларна инсталация и енергийна независимост. Няма гараж, но има възможност за паркиране в двора или изграждане на закрити паркоместа. Има канализация.
Предимства на имота
без такса поддръжка
до Бургас
голям двор
самостоятелно наземно помещение със санитарен възел и отделен вход
възможност за 4та спалня
голяма веранда
панорама
тиха и спокойна локация на пътя между Черни връх и Полски извор
природа, простор и панорама
паркомясто
възможност за обособяване на 3та спалня
канализация
Предлагаме и още една едноетажна къща в близост.
За района
Село Черни връх е добре устроено и привлекателно за постоянно живеене. В близост има хранителни магазини, училище, детска градина, аптека и всички основни удобства. Добра инфраструктура, асфалтирани улици и канализация допълват комфорта на живот в екологично чиста среда с бърз достъп до града. Код на офертата: JET 058.







