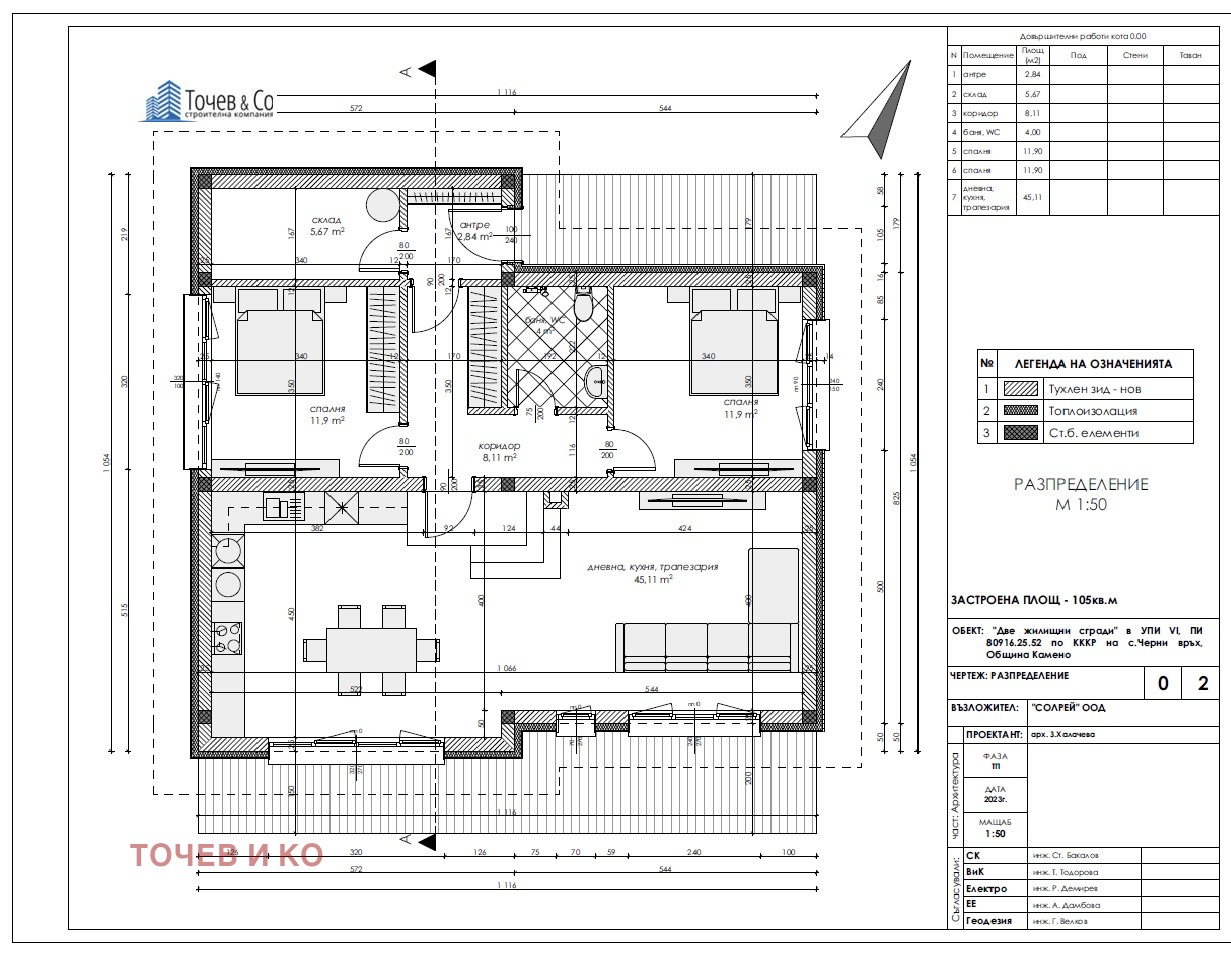
Едноетажната къща е с площ 130 м2 и има следното разпределение входно антре, изключително просторна дневна, /с възможност за отделяне още една стая/ заедно с кухненски ъгъл и трапезария, две спални, баня с тоалетна, сервизно помещение, голяма южна веранда и самостоятелно обособен двор 400м2. Покривът е плосък, с възможност за инсталиране на слънчеви панели и независимо ел. захранване . Строежът е с акт 15. Издава се на тапа.
Гъвкава схема за плащане, с възможност за съдействие за банков кредит.
Виж всички обяви в tochev.bazar.bg или тук
        
       
         
         
         
         
         
         
             
             
             
             
             
            




