Намира се в района на ресторант Черен Петър и предлага следното функционално разпределение :
Първо ниво: Дневна с трапезария, кухня и излаз на голяма веранда, спалня, баня с тоалетна, широко антре и двоен гараж с топла връзка към имота. Изградени са изводи за две зарядни станции за електро автомобили
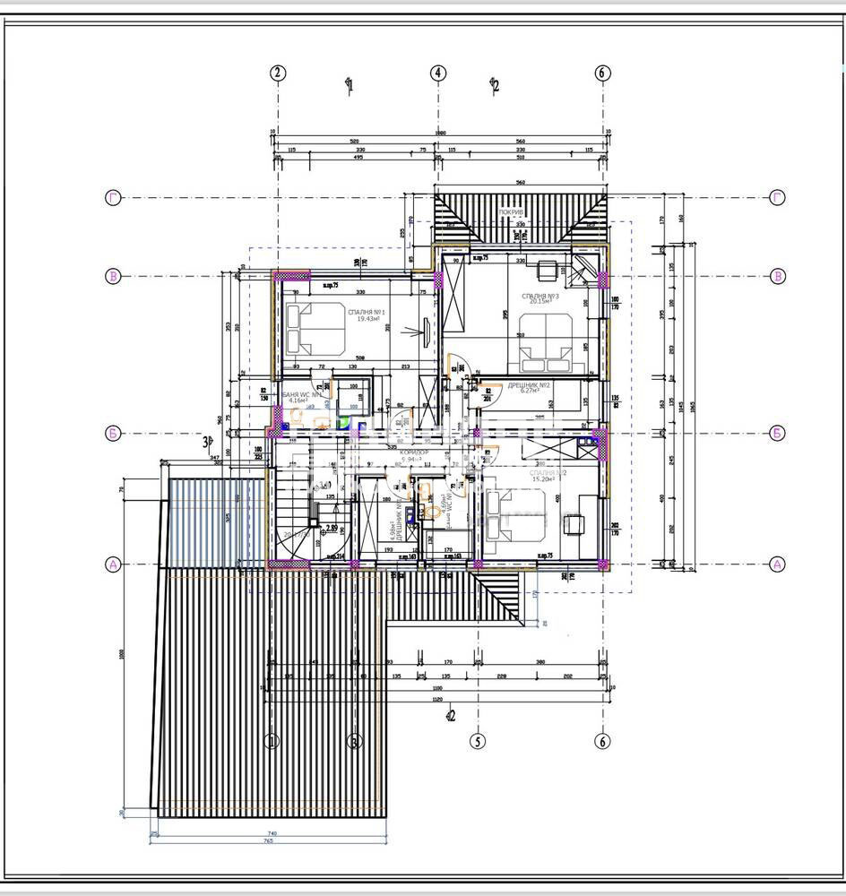
Второ ниво: Голяма родителска спалня с гардеробна и собствена баня, две широки детски стаи , баня с тоалетна и дрешник
Къщата е построена с висококачествени материали и предлага всички съвременни удобства. Основните предимства на имота са :
- Изцяло асфалтиран достъп
- Голям гараж
- Използваемо подпокривно пространство
- Заложена инсталация за подово отопление
- Алуминиева дограма с топъл дистанционер и трислоен стъклопакет
- Входни врати Hörmann
ВИЖТЕ ОЩЕ ИЗГОДНИ ОФЕРТИ НА https://www.kondorimoti.com/ С ЕЖЕДНЕВНА АКТУАЛИЗАЦИЯ!
Виж всички обяви в kondor.bazar.bg или тук
        
       
         
         
         
         
             
             
             
            






